IMIビル(物件No:01587119)
IMIビルは、台東区上野にある貸事務所物件です。最寄り駅は東京メトロ銀座線の上野広小路駅、末広町駅、東京メトロ日比谷線の仲御徒町駅、都営大江戸線の上野御徒町駅、JR線の御徒町駅、上野駅です。1986年竣工の賃貸オフィスビルです。天高は2650mmで、床はOAフロアとなっています。空調は個別空調でトイレは男女別です。機械警備で、エレベーターは1基あります。複数路線利用可能な、アクセスの良い台東区上野の貸事務所です。
- 
                    物件情報
- 
                        設備情報- トイレ
- 室内男女別
- 床
- タイルカーペット
- 空調
- 個別空調
- セキュリティ
- 有
- 駐車場
- 無
- 会議室
- -
- エレベーター
- 1基
- 天井高
- 2650mm
 
- 
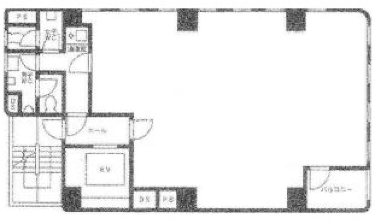
                        間取り図
- 
                    近隣相場情報上野5丁目(20~30坪)の相場 19490 円 (坪) 
 ※ビルサク調べ
周辺地図
IMIビルは、台東区上野にある貸事務所物件です。最寄り駅は東京メトロ銀座線の上野広小路駅、末広町駅、東京メトロ日比谷線の仲御徒町駅、都営大江戸線の上野御徒町駅、JR線の御徒町駅、上野駅です。1986年竣工の賃貸オフィスビルです。天高は2650mmで、床はOAフロアとなっています。空調は個別空調でトイレは男女別です。機械警備で、エレベーターは1基あります。複数路線利用可能な、アクセスの良い台東区上野の貸事務所です。
全フロア情報
更新日:2025年10月29日
| 階 | 面積 | 賃料 | 共益費 | 敷金 | 入居日 | お問合せ | お気に入り | |
|---|---|---|---|---|---|---|---|---|
| 5F | 24.92 坪 82.38 ㎡ | ※現在空室情報はございません | ※現在空室情報は 確認する | |||||
| 7F | 24.92 坪 82.38 ㎡ | ※現在空室情報はございません | ※現在空室情報は 確認する | |||||
お問い合わせ
似た条件の物件はこちら
- 
                    
                        ライオンズマンション上野山下東京都台東区上野2-14-30 坪数:25.35 坪 坪単価:19,724 円(坪) 
- 
                    
                        HMビル東京都台東区台東2-30-11 坪数:19.33 坪 坪単価:10,864 円(坪) 
- 
                    
                        井門東上野ビル東京都台東区東上野3-1-10 坪数:21.92 坪 坪単価:13,000 円(坪) 
- 
                    
                        上野パークビル東京都台東区東上野4-2-3 坪数:28.5 坪 坪単価:14,000 円(坪) 
- 
                    
                        宮島ビル東京都台東区東上野3-15-3 坪数:22.22 坪 坪単価:8,551 円(坪) 
- 
                    
                        吉川ビル東京都台東区北上野1-1-12 坪数:23.33 坪 坪単価:7,014 円(坪) 
- 
                    
                        外園ビル東京都台東区東上野1-17-1 坪数:22.48 坪 坪単価:9,508 円(坪) 
- 
                    
                        三翠ビル東京都台東区東上野3-37-6 坪数:19.13 坪 坪単価:12,546 円(坪) 
- 
                    
                        珠和ビル東京都台東区上野3-13-9 坪数:23.64 坪 坪単価:10,000 円(坪) 
- 
                    
                        東観第一ビル東京都台東区東上野3-15-10 坪数:20 坪 坪単価:12,000 円(坪) 
 
         
    