ルート西新橋ビル(物件No:01580115)
ルート西新橋ビルは、港区西新橋にある貸事務所物件です。最寄り駅は、JR、ゆりかもめ、東京メトロ銀座線、都営浅草線の新橋駅、東京メトロ銀座線の虎ノ門駅、東京メトロ日比谷線、丸ノ内線の、霞ヶ関駅、都営三田線の内幸町駅です。1985年竣工で、基準階が15.89坪の賃貸オフィスビルです。天高は2350mmで、床はOAフロアとなっております。空調は個別空調です。機械警備で、エレベーターは1基あります。複数路線利用可能な、アクセスの良い港区西新橋の貸事務所です。
-
物件情報
-
設備情報
- トイレ
- -
- 床
- フリーアクセス
- 空調
- 個別空調
- セキュリティ
- 有
- 駐車場
- 無
- 会議室
- -
- エレベーター
- 1基
- 天井高
- 2350mm
-
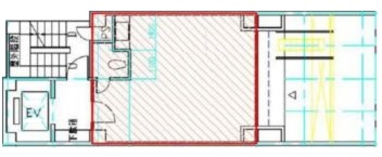
間取り図
-
近隣相場情報
西新橋1丁目(20坪以下)の相場
18933 円 (坪)
※ビルサク調べ
周辺施設情報
| コンビニ |
ローソン/合同庁舎第7号館/750m(徒歩10分) ファミリーマート/経済産業省店/500m(徒歩6分) |
|---|---|
| 郵便局/銀行 |
イーネット/ファミリーマート西新橋一丁目/[営業時間]0:00~24:00/100m(徒歩1分) 郵便局/NTT日比谷ビル内/平日 9:00-17:00 土曜 - 日曜・祝日 - [ATM]平日 9:00~17:30 土曜 - 日曜・祝日 -/450m(徒歩6分) |
| 飲食店 |
オホーツクの恵み 西新橋店/11時30分~15時00分、17時00分~23時00分/64m(徒歩1分) TRATTORIA okei/17時30分~0時00分/450m(徒歩6分) |
| カフェ |
プロント/ライブラリーダイニング 日比谷店/[営業時間]平日:カフェ 11:00~18:00 バー 18:00~21:30 土曜:カフェ 11:00~19:00 日曜:カフェ 11:00~17:00 祝日:カフェ 11:00~17:00 ビル休館日のため、3月4日~3月13日まで休業いたします。 [休業日]第3月曜日 [備考]74席/全席禁煙/550m(徒歩7分) ミスタードーナツ/銀座ナイン/[営業時間]07:00~23:00 土・日・祝日は、9:00~21:00まで営業しております。 [備考]終日全席禁煙/700m(徒歩9分) |
| コインパーキング |
三井のリパーク/新霞が関ビル駐車場 [料金] 全日 00:00~24:00 30分/300円 [最大料金] 【全日】最大料金入庫後12時間以内2500円 [台数]34 タイムズ駐車場/TNS西新橋1丁目 [料金] [月~金]通常料金 / 08:00-00:00 15分 300円 00:00-08:00 60分 100円 [土・日・祝]通常料金 / 08:00-00:00 15分 300円 00:00-08:00 60分 100円 [最大料金] [土・日・祝]当日1日最大料金2600円(24時迄) [台数]9 |
周辺地図
ルート西新橋ビルは、港区西新橋にある貸事務所物件です。最寄り駅は、JR、ゆりかもめ、東京メトロ銀座線、都営浅草線の新橋駅、東京メトロ銀座線の虎ノ門駅、東京メトロ日比谷線、丸ノ内線の、霞ヶ関駅、都営三田線の内幸町駅です。1985年竣工で、基準階が15.89坪の賃貸オフィスビルです。天高は2350mmで、床はOAフロアとなっております。空調は個別空調です。機械警備で、エレベーターは1基あります。複数路線利用可能な、アクセスの良い港区西新橋の貸事務所です。
全フロア情報
更新日:2022年4月21日
| 階 | 面積 | 賃料 | 共益費 | 敷金 | 入居日 | お問合せ | お気に入り | |
|---|---|---|---|---|---|---|---|---|
| 2F |
15.89 坪 52.53 ㎡ |
※現在空室情報はございません |
※現在空室情報は 確認する |
|||||
| 6F |
15.32 坪 50.64 ㎡ |
※現在空室情報はございません |
※現在空室情報は 確認する |
|||||
|
7F
(701区画) |
13.02 坪 43.04 ㎡ |
※現在空室情報はございません |
※現在空室情報は 確認する |
|||||
| 8F |
10.59 坪 35.01 ㎡ |
※現在空室情報はございません |
※現在空室情報は 確認する |
|||||
お問い合わせ
似た条件の物件はこちら
-
千代川ビル
東京都港区新橋3-2-3
坪数:11 坪
坪単価:11,000 円(坪)
-
上村ビル
東京都港区新橋5-27-6
坪数:12 坪
坪単価:10,000 円(坪)
-
K&W新橋
東京都港区新橋6-6-9
坪数:11.25 坪
坪単価:13,689 円(坪)
-
田村町Shinshodoh BLDG
東京都港区新橋4-27-7
坪数:14.17 坪
坪単価:25,000 円(坪)
-
三沢ビル
東京都港区新橋6-12-8
坪数:12.5 坪
坪単価:15,000 円(坪)
-
虎ノ門法曹ビル
東京都港区西新橋1-20-3
坪数:14.55 坪
坪単価:15,807 円(坪)
-
アソルティ新橋ビル
東京都港区新橋4-24-11
坪数:14.7 坪
坪単価:13,000 円(坪)
-
第2一松ビル
東京都港区新橋5-25-3
坪数:14.78 坪
坪単価:15,562 円(坪)
-
ニュー西新橋ビル
東京都港区西新橋2-11-6
坪数:10.99 坪
坪単価:16,018 円(坪)
-
日吉ビル
東京都港区新橋3-6-4
坪数:13.85 坪
坪単価:15,884 円(坪)