第4文成ビル(物件No:01384164)
第4文成ビルは、港区赤坂にある貸事務所物件です。最寄り駅は東京メトロ丸の内線、銀座線の赤坂見附駅、東京メトロ銀座線、南北線の溜池山王駅、東京メトロ銀座線、半蔵門線の青山一丁目駅、都営大江戸線の六本木駅、東京メトロ千代田線赤坂駅、乃木坂駅です。1974年竣工で、基準階が84坪の賃貸オフィスビルです。空調は個別空調でトイレは室内にあり、男女別です。機械警備で、エレベーターは1基あります。複数路線利用可能な、アクセスの良い港区赤坂の貸事務所です。
| 階 | 面積 | 賃料 | 共益費 | 敷金 | 入居日 | お問合せ | お気に入り |
|---|---|---|---|---|---|---|---|
|
7F
(704区画) |
13 坪 42.98 ㎡ |
182,000 円 14,000 円(坪) |
39,000 円 3,000 円(坪) |
1,820,000 円 10 ヶ月 |
即日 |
|
|
| 階 | 面積 | 賃料 | 共益費 | 敷金 | 入居日 | お問合せ | お気に入り |
|---|---|---|---|---|---|---|---|
|
7F
(704区画) |
13 坪 42.98 ㎡ |
182,000 円 14,000 円(坪) |
39,000 円 3,000 円(坪) |
1,820,000 円 10 ヶ月 |
即日 |
|
|
-
物件情報
-
設備情報
- トイレ
- 室外男女別
- 床
- -
- 空調
- 個別空調
- セキュリティ
- 有
- 駐車場
- 無
- 会議室
- -
- エレベーター
- 1基
- 天井高
- 2400mm
-
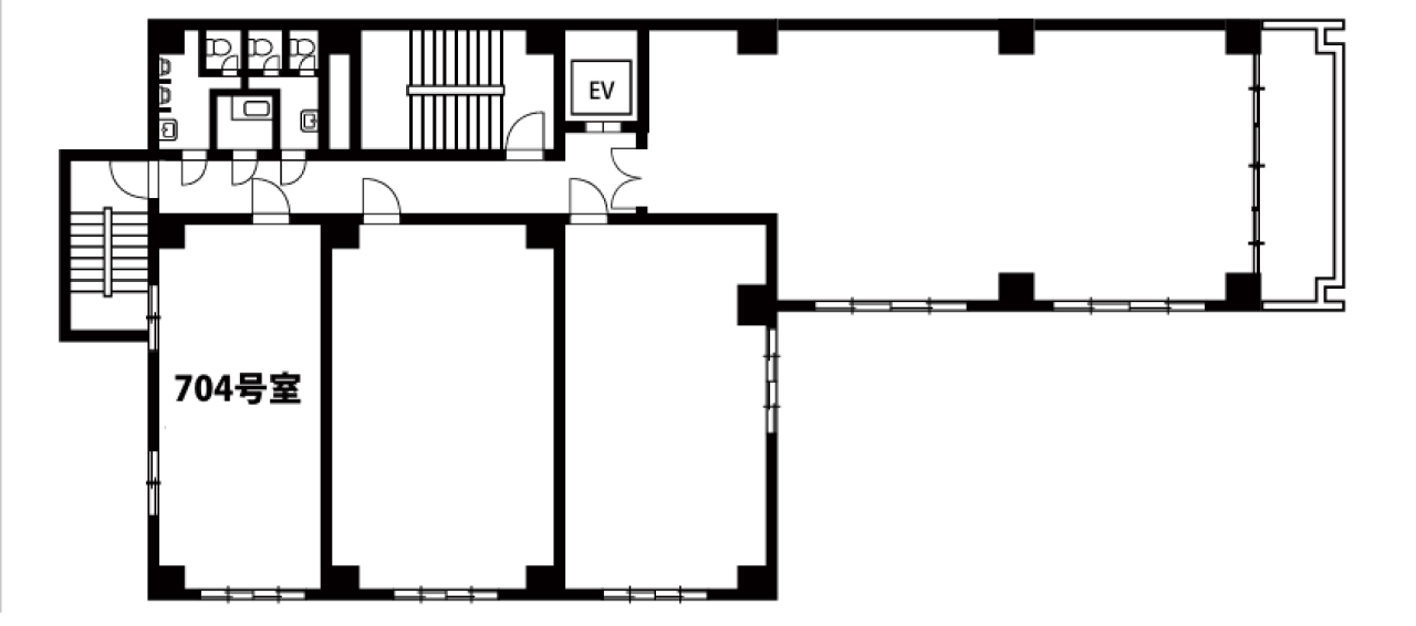
間取り図
-
近隣相場情報
赤坂7丁目(20坪以下)の相場
15918 円 (坪)
※ビルサク調べ
周辺施設情報
| コンビニ |
セブンイレブン/赤坂6丁目/90m(徒歩1分) ローソン/港赤坂九丁目/180m(徒歩2分) |
|---|---|
| 郵便局/銀行 |
三井住友銀行/ATM 赤坂5丁目交差点前出張所/[営業時間]平日 7:00~24:00 土曜日 7:00~24:00 日・祝日 7:00~21:00/130m(徒歩2分) セブン銀行/TBS放送センター店/[営業時間]24時間営業?[ATM台数]1/450m(徒歩5分) |
| 飲食店 |
赤坂 菊乃井/12時00分~15時00分、17時00分~23時00分/200m(徒歩2分) ビストロK/11時00分~14時00分、18時00分~23時00分/210m(徒歩3分) |
| カフェ |
カフエ・ド・フレール/月ー土 8:00-19:00/260m(徒歩3分) ドトール/赤坂5丁目店/[営業時間]平 日:07:00 - 20:00 土曜日:08:00 - 19:00 日 祝:08:00 - 18:30 [休業日]なし [備考]総席数:62 禁煙席:48 喫煙席:14/350m(徒歩4分) |
| コインパーキング |
パークジャパン/赤坂7丁目第3 [料金] 8:00~24:00 100円/10分 24:00~8:00 100円/60分 [最大料金] 最大料金24時間2,400円 最大料金24時間2,000円(No.14~16車室限定) [台数]16台 タイムズ駐車場/赤坂6丁目 [料金] [月~土]通常料金 / 00:00-00:00 15分 300円 [日・祝]通常料金 / 00:00-00:00 15分 300円 [最大料金] [月~土]08:00-19:00 最大料金3400円 19:00-08:00 最大料金600円 [日・祝]08:00-19:00 最大料金2400円 19:00-08:00 最大料金600円 [台数]14 |
周辺地図
第4文成ビルは、港区赤坂にある貸事務所物件です。最寄り駅は東京メトロ丸の内線、銀座線の赤坂見附駅、東京メトロ銀座線、南北線の溜池山王駅、東京メトロ銀座線、半蔵門線の青山一丁目駅、都営大江戸線の六本木駅、東京メトロ千代田線赤坂駅、乃木坂駅です。1974年竣工で、基準階が84坪の賃貸オフィスビルです。空調は個別空調でトイレは室内にあり、男女別です。機械警備で、エレベーターは1基あります。複数路線利用可能な、アクセスの良い港区赤坂の貸事務所です。
全フロア情報
更新日:2025年11月25日
| 階 | 面積 | 賃料 | 共益費 | 敷金 | 入居日 | お問合せ | お気に入り | |
|---|---|---|---|---|---|---|---|---|
|
1F
(102区画) |
17 坪 56.2 ㎡ |
340,000 円 20,000 円(坪) |
51,000 円 3,000 円(坪) |
3,400,000 円 10 ヶ月 |
即日 |
|
|
|
|
1F
(103区画) |
17 坪 56.2 ㎡ |
※現在空室情報はございません |
※現在空室情報は 確認する |
|||||
|
1F
(104区画) |
17 坪 56.2 ㎡ |
相談 |
込 |
10ヶ月 |
即日 |
|
|
|
|
2F
(201区画) |
33 坪 109.09 ㎡ |
※現在空室情報はございません |
※現在空室情報は 確認する |
|||||
|
2F
(202区画) |
20 坪 66.12 ㎡ |
※現在空室情報はございません |
※現在空室情報は 確認する |
|||||
|
2F
(203区画) |
17 坪 56.2 ㎡ |
※現在空室情報はございません |
※現在空室情報は 確認する |
|||||
|
2F
(204区画) |
17 坪 56.2 ㎡ |
※現在空室情報はございません |
※現在空室情報は 確認する |
|||||
|
6F
(601区画) |
38 坪 125.62 ㎡ |
532,000 円 14,000 円(坪) |
114,000 円 3,000 円(坪) |
5,320,000 円 10 ヶ月 |
相談 |
|
|
|
|
6F
(603区画) |
17 坪 56.2 ㎡ |
238,000 円 14,000 円(坪) |
51,000 円 3,000 円(坪) |
2,380,000 円 10 ヶ月 |
即日 |
|
|
|
|
7F
(701区画) |
35 坪 115.7 ㎡ |
※現在空室情報はございません |
※現在空室情報は 確認する |
|||||
|
7F
(702区画) |
20 坪 66.12 ㎡ |
※現在空室情報はございません |
※現在空室情報は 確認する |
|||||
|
7F
(703区画) |
20 坪 66.12 ㎡ |
※現在空室情報はございません |
※現在空室情報は 確認する |
|||||
|
7F
(704区画) |
13 坪 42.98 ㎡ |
182,000 円 14,000 円(坪) |
39,000 円 3,000 円(坪) |
1,820,000 円 10 ヶ月 |
即日 |
|
|
|
お問い合わせ
似た条件の物件はこちら
-
赤坂Kマンション
東京都港区赤坂2-15-7
坪数:15.81 坪
坪単価:16,302 円(坪)
-
AKASAKA8 BLDG.
東京都港区赤坂8-8-10
坪数:10.57 坪
坪単価:13,245 円(坪)
-
氷川アネックス2号館
東京都港区赤坂6-9-5
坪数:14.89 坪
坪単価:13,298 円(坪)
-
ゴールド赤坂
東京都港区赤坂3-12-11
坪数:17.58 坪
坪単価:23,891 円(坪)
-
赤坂栄ビル
東京都港区赤坂6-6-4
坪数:14.97 坪
坪単価:10,488 円(坪)
-
笠松千代田ビル
東京都千代田区永田町2-17-4
坪数:11.42 坪
坪単価:23,993 円(坪)
-
溜池山王葵ビル
東京都港区赤坂2-8-11
坪数:8.42 坪
坪単価:21,378 円(坪)
-
アークヒルズエグゼクティブタワー
東京都港区赤坂1-14-5
坪数:15.6 坪
坪単価:21,562 円(坪)
-
祥文堂ビル
東京都港区赤坂1-5-13
坪数:11.76 坪
坪単価:22,000 円(坪)