KDビル(物件No:01287260)
KDビルは、墨田区江東橋にある地上9階建ての賃貸事務所です。最寄駅はJR中央・総武線の錦糸町駅から徒歩5分、東京メトロ半蔵門線の錦糸町駅から徒歩5分です。1994年2月竣工の基準階面積が49.17坪の鉄骨鉄筋コンクリート造です。設備としては、エレベーターが1基あります。セキュリティは機械警備です。トイレは室内男女別です。空調は個別空調です。耐震設計となっている、コンビニや飲食店などの周辺施設が充実した墨田区江東橋の賃貸オフィスです。
- 
                    
物件情報
 - 
                        
設備情報
- トイレ
 - 室内男女別
 - 床
 - タイルカーペット
 - 空調
 - 個別空調
 - セキュリティ
 - 有
 - 駐車場
 - -
 - 会議室
 - -
 - エレベーター
 - 1基
 - 天井高
 - 2450mm
 
 - 
                        
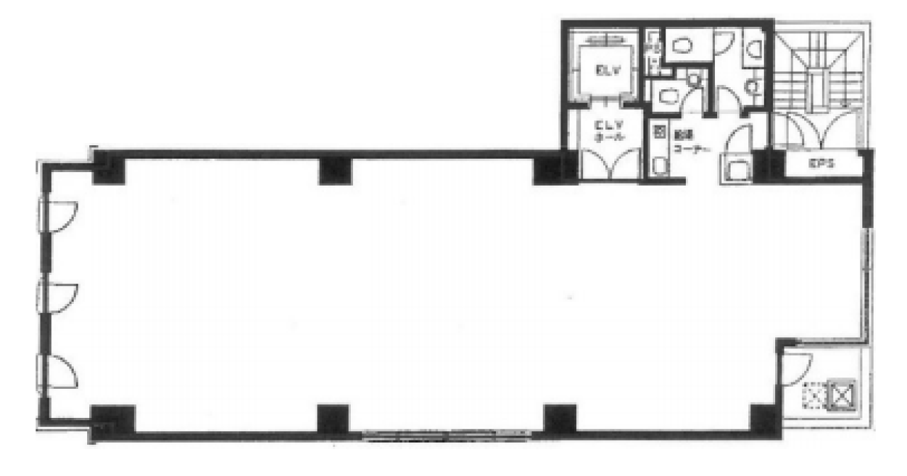
間取り図
 - 
                    
近隣相場情報
江東橋1丁目(40~50坪)の相場
調査中
 
周辺地図
KDビルは、墨田区江東橋にある地上9階建ての賃貸事務所です。最寄駅はJR中央・総武線の錦糸町駅から徒歩5分、東京メトロ半蔵門線の錦糸町駅から徒歩5分です。1994年2月竣工の基準階面積が49.17坪の鉄骨鉄筋コンクリート造です。設備としては、エレベーターが1基あります。セキュリティは機械警備です。トイレは室内男女別です。空調は個別空調です。耐震設計となっている、コンビニや飲食店などの周辺施設が充実した墨田区江東橋の賃貸オフィスです。
全フロア情報
更新日:2025年10月28日
| 階 | 面積 | 賃料 | 共益費 | 敷金 | 入居日 | お問合せ | お気に入り | |
|---|---|---|---|---|---|---|---|---|
| 2F | 
             45.38 坪 150.02 ㎡  | 
                    ※現在空室情報はございません | 
                 ※現在空室情報は 確認する  | 
            |||||
| 4F | 
             49.17 坪 162.55 ㎡  | 
                    ※現在空室情報はございません | 
                 ※現在空室情報は 確認する  | 
            |||||
| 7F | 
             49.17 坪 162.55 ㎡  | 
                    ※現在空室情報はございません | 
                 ※現在空室情報は 確認する  | 
            |||||
| 8F | 
             49.17 坪 162.55 ㎡  | 
                    ※現在空室情報はございません | 
                 ※現在空室情報は 確認する  | 
            |||||
| 9F | 
             47.11 坪 155.74 ㎡  | 
                    ※現在空室情報はございません | 
                 ※現在空室情報は 確認する  | 
            |||||