御田八幡ビル(物件No:01287166)
卸田八幡ビルは港区三田にある地上11階建ての賃貸事務所です。最寄駅は都営浅草線の泉岳寺駅から徒歩7分、JR線の田町駅から徒歩8分です。1984年2月竣工の鉄骨鉄筋コンクリート造です。設備としては、エレベーターが1基あり、駐車場もあります。耐震設計となっている、複数路線利用可能なアクセスの良い港区三田の賃貸オフィスです。
| 階 | 面積 | 賃料 | 共益費 | 敷金 | 入居日 | お問合せ | お気に入り |
|---|---|---|---|---|---|---|---|
|
6F
(602区画) |
17.5 坪 57.85 ㎡ |
200,000 円 11,429 円(坪) |
15,000 円 857 円(坪) |
600,000 円 3 ヶ月 |
即日 |
|
|
| 階 | 面積 | 賃料 | 共益費 | 敷金 | 入居日 | お問合せ | お気に入り |
|---|---|---|---|---|---|---|---|
|
6F
(602区画) |
17.5 坪 57.85 ㎡ |
200,000 円 11,429 円(坪) |
15,000 円 857 円(坪) |
600,000 円 3 ヶ月 |
即日 |
|
|
-
物件情報
-
設備情報
- トイレ
- 男女別
- 床
- -
- 空調
- -
- セキュリティ
- -
- 駐車場
- 有
- 会議室
- -
- エレベーター
- 1基
- 天井高
- -
-
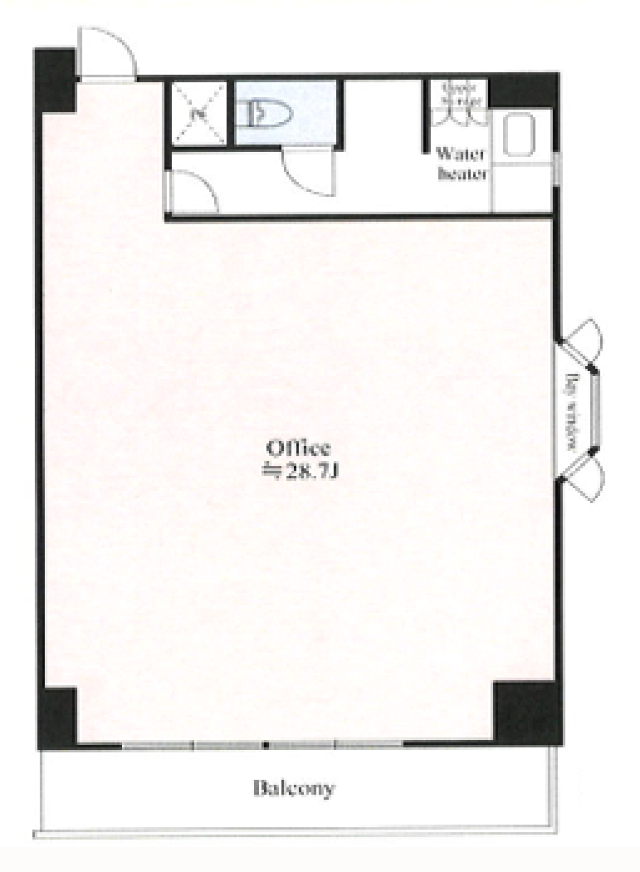
間取り図
-
近隣相場情報
三田3丁目(20坪以下)の相場
13643 円 (坪)
※ビルサク調べ
周辺施設情報
| コンビニ |
ファミリーマート/三田三丁目店/240m(徒歩4分) セブンイレブン/港区三田5丁目/600m(徒歩8分) |
|---|---|
| 郵便局/銀行 |
三井住友銀行/ATM グランパークタワー出張所/[営業時間]平日 8:00~21:00/700m(徒歩9分) セブン銀行/三田ベルジュビル店/[営業時間]24時間営業 [備考]1 台/500m(徒歩6分) |
| 飲食店 |
イル・フィーロ/11時30分~14時30分、17時30分~22時00分/83m(徒歩1分) ゆで太郎 三田3丁目店/6時30分~22時00分/86m(徒歩1分) |
| カフェ |
ニックストック/msb Tamachi店/[営業時間]11:00~23:00 (LO.F22:00 / D22:30)/1000m(徒歩14分) タリーズ/泉岳寺駅前店/[営業時間]平日:7:30~20:00 土 :休業日 日祝:休業日 [備考]Tully's Wi-Fi/400m(徒歩5分) |
| コインパーキング |
GSパーク/三田四丁目 [料金] 【月~土】 時間割料金 08:00~22:00 15分 300円 22:00~08:00 60分 100円 【日祝】 時間割料金 08:00~22:00 15分 300円 22:00~08:00 60分 100円 [最大料金] 【月~土】 最大料金 12時間最大 2,800円 【日祝】 最大料金 12時間最大 1,800円 [台数]43台 パークジャパン/三田第14 [料金] 8:00~20:00 200円/25分 20:00~8:00 100円/60分 [最大料金] 8:00~20:00 最大料金2,200円 20:00~8:00 最大料金500円 [台数]3台 |
周辺地図
卸田八幡ビルは港区三田にある地上11階建ての賃貸事務所です。最寄駅は都営浅草線の泉岳寺駅から徒歩7分、JR線の田町駅から徒歩8分です。1984年2月竣工の鉄骨鉄筋コンクリート造です。設備としては、エレベーターが1基あり、駐車場もあります。耐震設計となっている、複数路線利用可能なアクセスの良い港区三田の賃貸オフィスです。
全フロア情報
更新日:2026年2月13日
| 階 | 面積 | 賃料 | 共益費 | 敷金 | 入居日 | お問合せ | お気に入り | |
|---|---|---|---|---|---|---|---|---|
|
2F
(201区画) |
61.93 坪 204.72 ㎡ |
※現在空室情報はございません |
※現在空室情報は 確認する |
|||||
|
3F
(302区画) |
17.5 坪 57.85 ㎡ |
※現在空室情報はございません |
※現在空室情報は 確認する |
|||||
|
4F
(401区画) |
17.5 坪 57.85 ㎡ |
※現在空室情報はございません |
※現在空室情報は 確認する |
|||||
|
4F
(402区画) |
17.5 坪 57.85 ㎡ |
※現在空室情報はございません |
※現在空室情報は 確認する |
|||||
|
6F
(602区画) |
17.5 坪 57.85 ㎡ |
200,000 円 11,429 円(坪) |
15,000 円 857 円(坪) |
600,000 円 3 ヶ月 |
即日 |
|
|
|
|
7F
(701区画) |
17.49 坪 57.82 ㎡ |
※現在空室情報はございません |
※現在空室情報は 確認する |
|||||
|
7F
(702区画) |
17.49 坪 57.82 ㎡ |
※現在空室情報はございません |
※現在空室情報は 確認する |
|||||
|
7F
(703区画) |
12.51 坪 41.36 ㎡ |
※現在空室情報はございません |
※現在空室情報は 確認する |
|||||
|
9F
(902区画) |
17.49 坪 57.82 ㎡ |
※現在空室情報はございません |
※現在空室情報は 確認する |
|||||
|
10F
(1001区画) |
17.5 坪 57.85 ㎡ |
※現在空室情報はございません |
※現在空室情報は 確認する |
|||||
|
11F
(1001区画) |
17.5 坪 57.85 ㎡ |
※現在空室情報はございません |
※現在空室情報は 確認する |
|||||
|
11F
(1102区画) |
17.5 坪 57.85 ㎡ |
※現在空室情報はございません |
※現在空室情報は 確認する |
|||||
|
11F
(1103区画) |
12.51 坪 41.36 ㎡ |
※現在空室情報はございません |
※現在空室情報は 確認する |
|||||
お問い合わせ
似た条件の物件はこちら
-
専売ビル
東京都港区芝5-26-30
坪数:12.33 坪
坪単価:19,981 円(坪)
-
マリンクス・タワー
東京都港区海岸1-9-11
坪数:17.73 坪
坪単価:16,000 円(坪)
-
芝大門1丁目ビル
東京都港区芝大門1-6-4
坪数:12.87 坪
坪単価:17,094 円(坪)
-
グランディックビル
東京都港区芝5-14-14
坪数:16.5 坪
坪単価:16,970 円(坪)
-
My Maison
東京都港区芝3-16-9
坪数:15.13 坪
坪単価:16,530 円(坪)
-
山口ビル
東京都港区芝公園1-7-7
坪数:22 坪
坪単価:11,364 円(坪)
-
亀田ビル
東京都港区浜松町2-7-6
坪数:12.02 坪
坪単価:17,471 円(坪)
-
CROSS三田
東京都港区三田3-14-13
坪数:20.25 坪
坪単価:15,012 円(坪)
-
星野ビル
東京都港区浜松町1-15-6
坪数:15 坪
坪単価:12,000 円(坪)