第1川端ビル(物件No:01286183)
第1川端ビルは、中央区日本橋堀留町にある貸事務所物件です。最寄り駅は、東京メトロ日比谷線、都営浅草線の人形町駅、JR総武線の新日本橋駅、東京メトロ銀座線の三越前駅です。1973年竣工で、基準階が34.9坪の賃貸オフィスビルです。天高は2500mmで、床はOAフロアとなっております。空調は個別空調で、トイレは室外にあり、男女別です。エレベーターは1基あります。複数路線利用可能な、アクセスの良い中央区日本橋堀留町の貸事務所です。
-
物件情報
-
設備情報
- トイレ
- 室外男女別
- 床
- フリーアクセス
- 空調
- 個別空調
- セキュリティ
- -
- 駐車場
- -
- 会議室
- -
- エレベーター
- 1基
- 天井高
- 2500mm
-
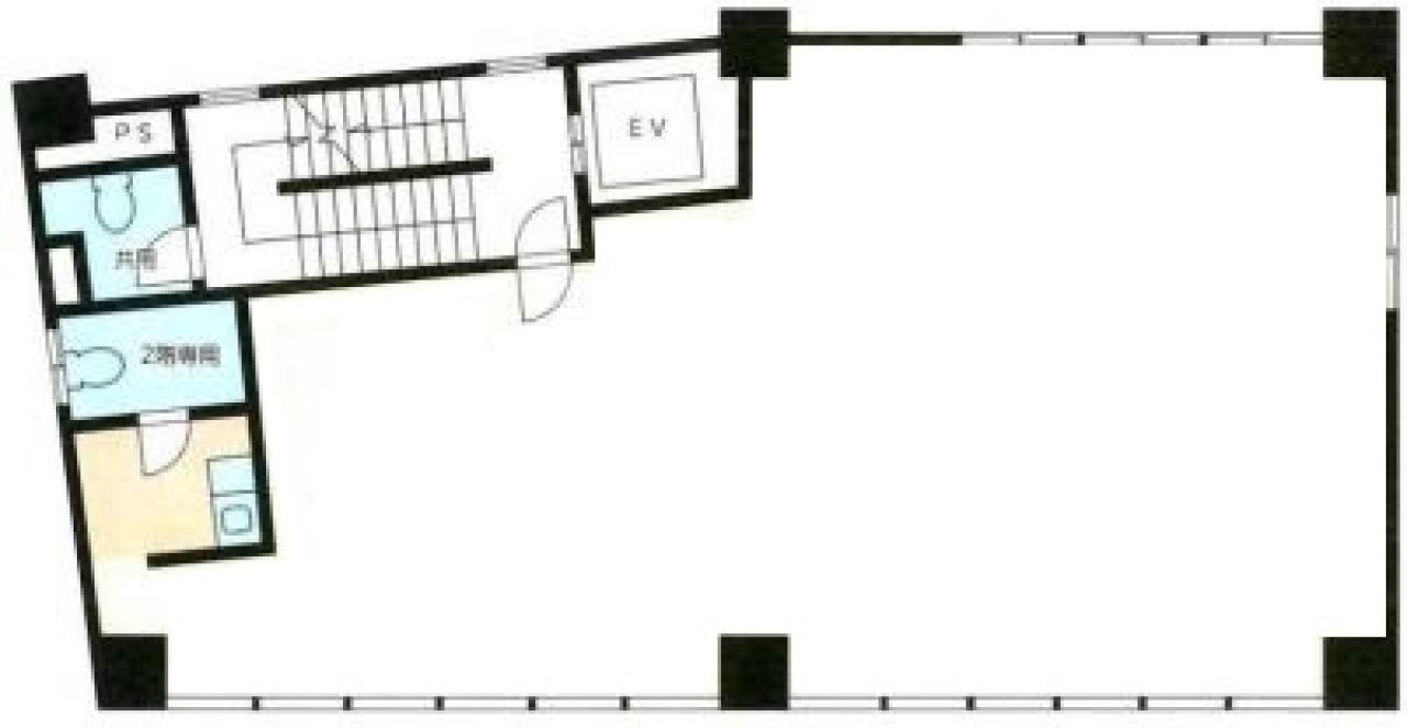
間取り図
-
近隣相場情報
日本橋堀留町1丁目(30~40坪)の相場
14000 円 (坪)
※ビルサク調べ
周辺施設情報
| コンビニ |
セブンイレブン/日本橋堀留町2丁目/68m(徒歩1分) デイリーヤマザキ/日本橋堀留町店/130m(徒歩2分) |
|---|---|
| 郵便局/銀行 |
芝信用金庫/日本橋支店/電話番号03-5652-1141/92m(徒歩1分) イーネット/デイリーヤマザキ日本橋堀留町/[営業時間]0:00~24:00/130m(徒歩2分) |
| 飲食店 |
PIZZERIA IL TAMBURELLO/11時30分~14時00分 17時00分~23時00分/160m(徒歩2分) 麺屋大斗 日本橋堀留町店/11時00分~21時00分/140m(徒歩2分) |
| カフェ |
ベローチェ/日本橋堀留町店/[営業時間]7:00~22:00 日・祝21:00/79m(徒歩1分) ドトール/日本橋小舟町店/[営業時間]平日 7:30~17:30 土曜 - 日祝 -/170m(徒歩2分) |
| コインパーキング |
名鉄協商パーキング/日本橋堀留町 [料金] [料金]全日 0:00~24:00 20分 300円 [最大料金] 18:00~8:00 最大料金 300円 月~金・土 8:00~18:00 最大料金 2,800円 日祝 8:00~18:00 最大料金 600円 [台数]2台 三井のリパーク/日本橋堀留町1丁目第5 [料金] [料金]全日 08:00~22:00 12分/330円 全日 22:00~08:00 60分/110円 [最大料金] 最大料金 【全日】最大料金入庫後6時間以内3400円 [台数]8 |
周辺地図
第1川端ビルは、中央区日本橋堀留町にある貸事務所物件です。最寄り駅は、東京メトロ日比谷線、都営浅草線の人形町駅、JR総武線の新日本橋駅、東京メトロ銀座線の三越前駅です。1973年竣工で、基準階が34.9坪の賃貸オフィスビルです。天高は2500mmで、床はOAフロアとなっております。空調は個別空調で、トイレは室外にあり、男女別です。エレベーターは1基あります。複数路線利用可能な、アクセスの良い中央区日本橋堀留町の貸事務所です。
全フロア情報
更新日:2020年8月21日
| 階 | 面積 | 賃料 | 共益費 | 敷金 | 入居日 | お問合せ | お気に入り | |
|---|---|---|---|---|---|---|---|---|
| 1F |
26.08 坪 86.21 ㎡ |
※現在空室情報はございません |
※現在空室情報は 確認する |
|||||
| 2F |
32.85 坪 108.59 ㎡ |
※現在空室情報はございません |
※現在空室情報は 確認する |
|||||
| 3F |
32.85 坪 108.59 ㎡ |
※現在空室情報はございません |
※現在空室情報は 確認する |
|||||
| 4F |
32.85 坪 108.59 ㎡ |
※現在空室情報はございません |
※現在空室情報は 確認する |
|||||
お問い合わせ
似た条件の物件はこちら
-
日本橋協栄ビル
東京都中央区日本橋小舟町15-17
坪数:31.01 坪
坪単価:10,000 円(坪)
-
伊勢兼ビル
東京都中央区日本橋人形町1-7-9
坪数:27.05 坪
坪単価:17,000 円(坪)
-
セーラー第3ビル
東京都中央区日本橋蛎殻町1-21-4
坪数:36.94 坪
坪単価:10,000 円(坪)
-
林ビル
東京都中央区日本橋馬喰町1-5-10
坪数:29.43 坪
坪単価:10,000 円(坪)
-
金物会館ビル
東京都中央区日本橋浜町2-37-8
坪数:34.76 坪
坪単価:4,315 円(坪)
-
オーキッドプレイス蛎殻町ビル
東京都中央区日本橋蛎殻町1-4-1
坪数:24.87 坪
坪単価:15,000 円(坪)
-
FSビル
東京都中央区日本橋人形町2-21-1
坪数:22.05 坪
坪単価:11,000 円(坪)
-
アトリウム日本橋人形町一丁目
東京都中央区日本橋人形町1-5-8
坪数:41.29 坪
坪単価:25,000 円(坪)
-
エムジー小伝馬町ビル
東京都中央区日本橋小伝馬町7-10
坪数:24.71 坪
坪単価:10,500 円(坪)
-
鈴善ビル
東京都中央区日本橋小舟町1-12
坪数:22.15 坪
坪単価:11,000 円(坪)
関連エリアから探す
- 日本橋大伝馬町
- 日本橋蛎殻町
- 日本橋小網町
- 日本橋小伝馬町
- 日本橋小舟町
- 日本橋富沢町
- 日本橋人形町
- 日本橋箱崎町
- 日本橋堀留町
- 日本橋中洲
- 日本橋馬喰町
- 日本橋浜町
- 日本橋久松町
- 日本橋横山町
- 東日本橋