全国旅館会館(物件No:01189037)
全国旅館会館は千代田区平河町にある地下2階、地上7階建ての賃貸事務所です。最寄駅は東京メトロ有楽町線の永田町駅から徒歩2分、東京メトロ半蔵門線の半蔵門駅から徒歩10分、東京メトロ有楽町線の麹町駅から徒歩10分、東京メトロ銀座線の赤坂見附駅から徒歩5分です。1970年竣工の基準階面積が154.3坪の鉄筋コンクリート造です。設備としては、エレベーターが2基あり、駐車場もあります。セキュリティは機械警備です。トイレは室外男女別です。空調は個別空調です。床仕様はフリーアクセスです。複数路線利用可能なアクセスの良い千代田区平河町の賃貸オフィスです。
| 階 | 面積 | 賃料 | 共益費 | 敷金 | 入居日 | お問合せ | お気に入り |
|---|---|---|---|---|---|---|---|
|
7F
(1区画) |
25.55 坪 84.46 ㎡ |
393,470 円 15,400 円(坪) |
89,425 円 3,500 円(坪) |
3,934,700 円 10 ヶ月 |
即日 |
|
|
| 階 | 面積 | 賃料 | 共益費 | 敷金 | 入居日 | お問合せ | お気に入り |
|---|---|---|---|---|---|---|---|
|
7F
(1区画) |
25.55 坪 84.46 ㎡ |
393,470 円 15,400 円(坪) |
89,425 円 3,500 円(坪) |
3,934,700 円 10 ヶ月 |
即日 |
|
|
-
物件情報
-
設備情報
- トイレ
- 室外男女別
- 床
- フリーアクセス
- 空調
- 個別空調
- セキュリティ
- 有
- 駐車場
- 有
- 会議室
- -
- エレベーター
- 2基
- 天井高
- -
-
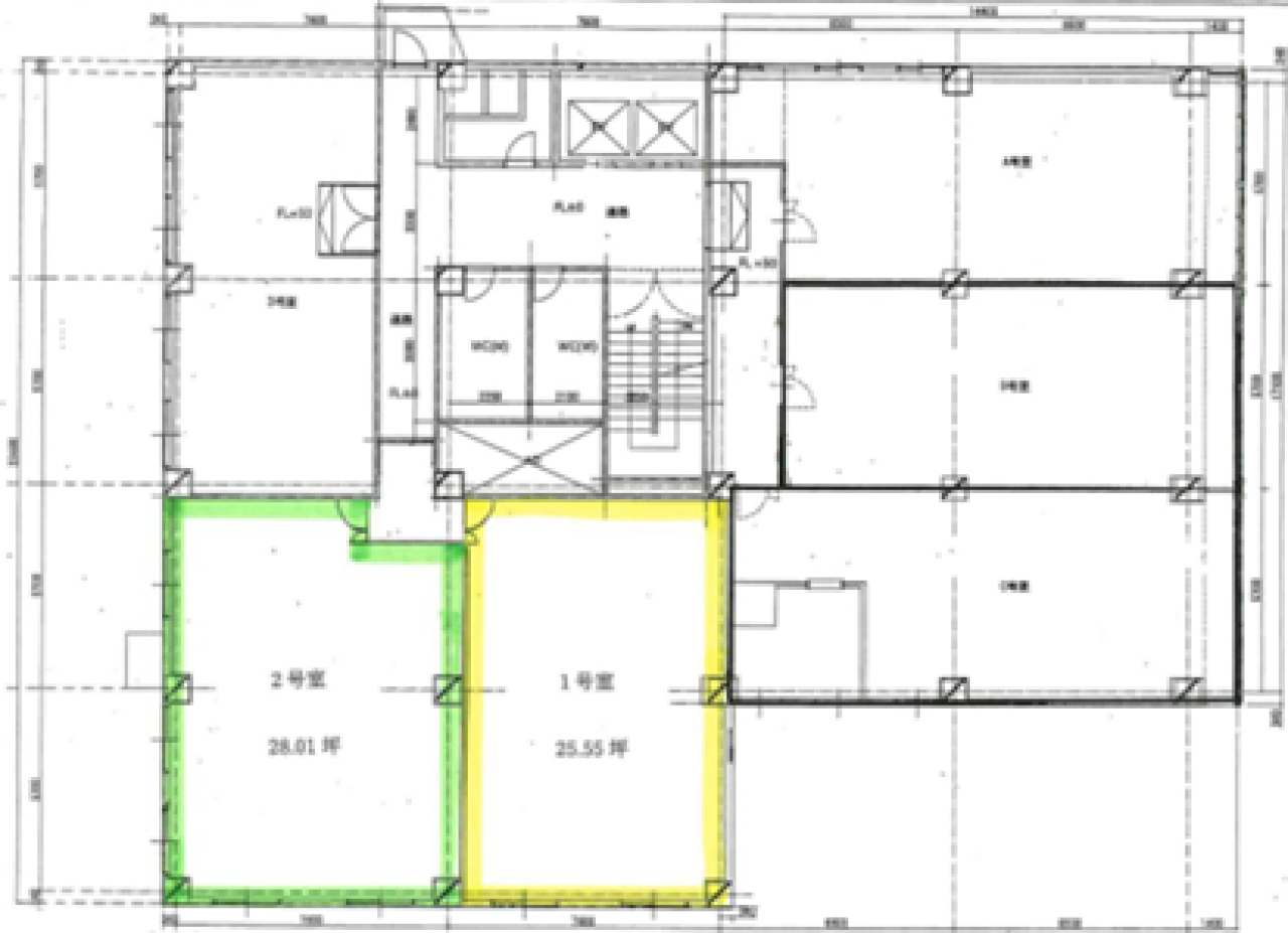
間取り図
-
近隣相場情報
平河町2丁目(20~30坪)の相場
17248 円 (坪)
※ビルサク調べ
周辺施設情報
| コンビニ |
ファミリーマート/ガーデンコート店/650m(徒歩8分) ローソン/永田町一丁目/400m(徒歩5分) |
|---|---|
| 郵便局/銀行 |
りそな銀行/参議院支店/[営業時間]平日/9:00~17:00 [ATM]平日/8:45~19:00/700m(徒歩9分) イーネット/ファミリーマート紀尾井町/[営業時間]0:00~24:00/250m(徒歩3分) |
| 飲食店 |
レストラン アイリス/7時00分~9時30分、11時00分~14時00分/280m(徒歩4分) 赤坂四川飯店/11時30分~14時00分、17時00分~20時00分/ |
| カフェ |
可否道 平河町店/10時00分~19時00分/400m(徒歩5分) Kioi Sabo/8時00分~19時00分/400m(徒歩5分) |
| コインパーキング |
タイムズ/海運ビル [料金] [全日]0:00~0:00 30分 440円 [最大料金] [全日]駐車後24時間 最大料金3300円 [全日]23:00~8:00 最大料金550円 [台数]28 名鉄協商パーキング/永田町駅北 [料金] 全日 0:00~24:00 30分 400円 [最大料金] 全日 18:00~8:00 最大料金 600円 月~金・土 8:00~18:00 最大料金 2,500円 日祝 8:00~18:00 最大料金 1,100円 [台数]6台 |
周辺地図
全国旅館会館は千代田区平河町にある地下2階、地上7階建ての賃貸事務所です。最寄駅は東京メトロ有楽町線の永田町駅から徒歩2分、東京メトロ半蔵門線の半蔵門駅から徒歩10分、東京メトロ有楽町線の麹町駅から徒歩10分、東京メトロ銀座線の赤坂見附駅から徒歩5分です。1970年竣工の基準階面積が154.3坪の鉄筋コンクリート造です。設備としては、エレベーターが2基あり、駐車場もあります。セキュリティは機械警備です。トイレは室外男女別です。空調は個別空調です。床仕様はフリーアクセスです。複数路線利用可能なアクセスの良い千代田区平河町の賃貸オフィスです。
全フロア情報
更新日:2026年2月18日
| 階 | 面積 | 賃料 | 共益費 | 敷金 | 入居日 | お問合せ | お気に入り | |
|---|---|---|---|---|---|---|---|---|
|
2F
(4区画) |
23.4 坪 77.35 ㎡ |
※現在空室情報はございません |
※現在空室情報は 確認する |
|||||
|
3F
(3-2区画) |
31.15 坪 102.98 ㎡ |
※現在空室情報はございません |
※現在空室情報は 確認する |
|||||
|
3F
(301区画) |
51.14 坪 169.06 ㎡ |
※現在空室情報はございません |
※現在空室情報は 確認する |
|||||
|
4F
(3区画) |
23 坪 76.03 ㎡ |
※現在空室情報はございません |
※現在空室情報は 確認する |
|||||
|
7F
(1区画) |
25.55 坪 84.46 ㎡ |
393,470 円 15,400 円(坪) |
89,425 円 3,500 円(坪) |
3,934,700 円 10 ヶ月 |
即日 |
|
|
|
|
7F
(2区画) |
53.39 坪 176.5 ㎡ |
800,850 円 15,000 円(坪) |
186,865 円 3,500 円(坪) |
8,008,500 円 10 ヶ月 |
即日 |
|
|
|
|
7F
(A区画) |
25.03 坪 82.74 ㎡ |
※現在空室情報はございません |
※現在空室情報は 確認する |
|||||
|
7F
(B区画) |
21.96 坪 72.59 ㎡ |
※現在空室情報はございません |
※現在空室情報は 確認する |
|||||
お問い合わせ
似た条件の物件はこちら
-
第2DMJビル
東京都千代田区九段南3-5-9
坪数:24.41 坪
坪単価:20,000 円(坪)
-
センダビル
東京都千代田区麹町3-7-9
坪数:19 坪
坪単価:9,000 円(坪)
-
jeVビル
東京都千代田区平河町2-16-16
坪数:18.06 坪
坪単価:12,735 円(坪)
-
隼東幸ビル
東京都千代田区隼町3-19
坪数:21.15 坪
坪単価:14,000 円(坪)
-
WIND KIOICHO BLDG.
東京都千代田区紀尾井町3-30
坪数:29.6 坪
坪単価:25,000 円(坪)
-
Shirasuna bldg.NAGATACHO
東京都千代田区平河町2-10-4
坪数:28.45 坪
坪単価:22,048 円(坪)
-
桔梗ライオンズマンション平河町
東京都千代田区平河町1-8-8
坪数:17.48 坪
坪単価:9,725 円(坪)
-
一番町村上ビル
東京都千代田区一番町9-7
坪数:32.84 坪
坪単価:12,000 円(坪)
-
東プレビル
東京都千代田区五番町4-2
坪数:34 坪
坪単価:15,000 円(坪)