ヒューリック渋谷二丁目ビル(物件No:01188025)
ヒューリック渋谷二丁目ビルは渋谷区渋谷にある地下1階、地上7階建ての賃貸事務所です。最寄駅はJR線の渋谷駅から徒歩8分、東京メトロ銀座線の表参道駅から徒歩11分、東京メトロ銀座線の渋谷駅から徒歩8分、東京メトロ半蔵門線の渋谷駅から徒歩8分です。1988年5月竣工の基準階面積が70.7坪の鉄骨鉄筋コンクリート造です。設備としては、エレベーターが1基あり、駐車場もあります。セキュリティは機械警備です。トイレは男女別です。空調は個別空調です。床仕様はフリーアクセスです。天高は2500mmです。耐震設計となっている、複数路線利用可能なアクセスの良い渋谷区渋谷の賃貸オフィスです。
-
物件情報
-
設備情報
- トイレ
- 室内男女別
- 床
- フリーアクセス
- 空調
- 個別空調
- セキュリティ
- 有
- 駐車場
- 有
- 会議室
- -
- エレベーター
- 2基
- 天井高
- 2450mm
-
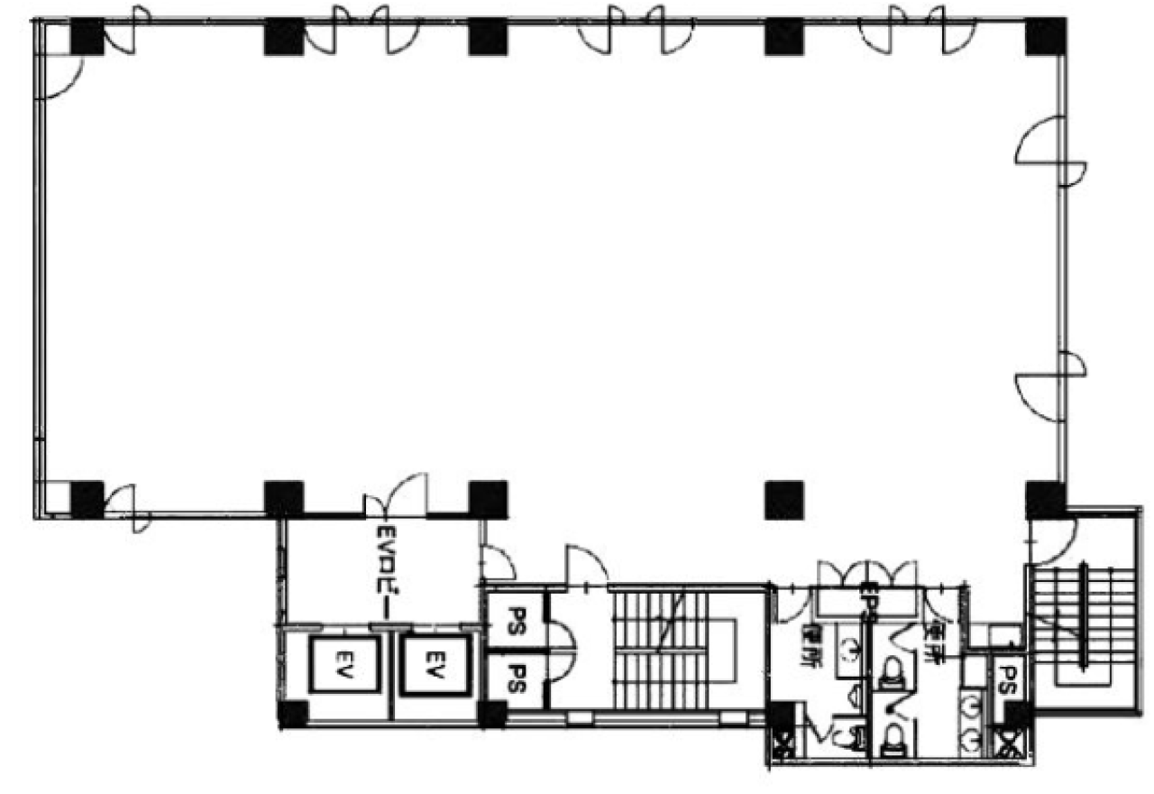
間取り図
-
近隣相場情報
渋谷2丁目(50~100坪)の相場
29000 円 (坪)
※ビルサク調べ
周辺施設情報
| コンビニ |
ファミリーマート/渋谷二丁目店/100m(徒歩1分) ローソン/ナチュラル 渋谷一丁目/400m(徒歩6分) |
|---|---|
| 郵便局/銀行 |
イーネット/ファミリーマート宮益坂上/[営業時間]0:00-24:00/210m(徒歩3分) 三井住友銀行/ATM 神宮前出張所/[ATM]平日 7:00-24:00 土曜 7:00-24:00 日曜・祝日 7:00-21:00/450m(徒歩6分) |
| 飲食店 |
NAPOLIMANIA/11時30分~14時00分、17時30分~22時30分/56m(徒歩1分) ト灯/18時00分~1時30分/47m(徒歩1分) |
| カフェ |
ZEROCAFE青山/11時30分~21時00分/60m(徒歩1分) 千十一/11時00分~21時00分/44m(徒歩1分) |
| コインパーキング |
NPD/青山オーバルビル [料金] 400円/30分 [最大料金] 平日 2800円/1日 土日 3500円/1日 宿泊料金 1000円 ユアー・パーキング/渋谷第4 [料金] 【全日】 08時~20時 30分/500円 【全日】 20時~08時 60分/200円 [最大料金] 入庫後5時間最大3.000円(1回限り) 夜間最大(20時~08時の間)500円 [台数]7 |
周辺地図
ヒューリック渋谷二丁目ビルは渋谷区渋谷にある地下1階、地上7階建ての賃貸事務所です。最寄駅はJR線の渋谷駅から徒歩8分、東京メトロ銀座線の表参道駅から徒歩11分、東京メトロ銀座線の渋谷駅から徒歩8分、東京メトロ半蔵門線の渋谷駅から徒歩8分です。1988年5月竣工の基準階面積が70.7坪の鉄骨鉄筋コンクリート造です。設備としては、エレベーターが1基あり、駐車場もあります。セキュリティは機械警備です。トイレは男女別です。空調は個別空調です。床仕様はフリーアクセスです。天高は2500mmです。耐震設計となっている、複数路線利用可能なアクセスの良い渋谷区渋谷の賃貸オフィスです。
全フロア情報
更新日:2026年2月17日
| 階 | 面積 | 賃料 | 共益費 | 敷金 | 入居日 | お問合せ | お気に入り | |
|---|---|---|---|---|---|---|---|---|
| 2F |
79.2 坪 261.82 ㎡ |
※現在空室情報はございません |
※現在空室情報は 確認する |
|||||
|
2F
(1区画) |
70.7 坪 233.72 ㎡ |
※現在空室情報はございません |
※現在空室情報は 確認する |
|||||
| 3F |
79.2 坪 261.82 ㎡ |
※現在空室情報はございません |
※現在空室情報は 確認する |
|||||
| 4F |
70.7 坪 233.72 ㎡ |
※現在空室情報はございません |
※現在空室情報は 確認する |
|||||
|
4F
(1区画) |
16.1 坪 53.22 ㎡ |
※現在空室情報はございません |
※現在空室情報は 確認する |
|||||
|
4F
(2区画) |
35 坪 233.72 ㎡ |
※現在空室情報はございません |
※現在空室情報は 確認する |
|||||
|
4F
(3区画) |
54.59 坪 233.72 ㎡ |
※現在空室情報はございません |
※現在空室情報は 確認する |
|||||
| 5F |
79.2 坪 261.82 ㎡ |
※現在空室情報はございません |
※現在空室情報は 確認する |
|||||
|
5F
(1区画) |
70.7 坪 233.72 ㎡ |
※現在空室情報はございません |
※現在空室情報は 確認する |
|||||
|
5F
(2区画) |
79.20 坪 261.82 ㎡ |
※現在空室情報はございません |
※現在空室情報は 確認する |
|||||
| 6F |
79.2 坪 261.82 ㎡ |
※現在空室情報はございません |
※現在空室情報は 確認する |
|||||
| 7F |
62.19 坪 205.59 ㎡ |
※現在空室情報はございません |
※現在空室情報は 確認する |
|||||
| 未公開F |
79.2 坪 261.82 ㎡ |
※現在空室情報はございません |
※現在空室情報は 確認する |
|||||
お問い合わせ
似た条件の物件はこちら
-
AND FIRST BLDG.
東京都渋谷区桜丘町9-17
坪数:74.2 坪
坪単価:35,000 円(坪)
-
Daiwa渋谷スクエア
東京都渋谷区南平台町16-28
坪数:88.94 坪
坪単価:31,000 円(坪)
-
クレインズパークビル
東京都渋谷区神宮前6-18-1
坪数:66.95 坪
坪単価:35,101 円(坪)
-
KHOビル
東京都渋谷区東3-14-15
坪数:68.14 坪
坪単価:19,000 円(坪)
-
神南ビル
東京都渋谷区神南1-3-4
坪数:66.98 坪
坪単価:22,300 円(坪)
-
渋谷第一生命ビルディング
東京都渋谷区渋谷3-8-12
坪数:69.28 坪
坪単価:30,000 円(坪)
-
新大宗道玄坂上ビル
東京都渋谷区円山町20-1
坪数:77 坪
坪単価:17,500 円(坪)
-
サンポウ綜合ビル
東京都渋谷区神宮前6-5-6
坪数:69.72 坪
坪単価:100,000 円(坪)
-
寿パークビル
東京都渋谷区道玄坂1-20-8
坪数:93.25 坪
坪単価:20,300 円(坪)
-
井門神宮前六丁目ビル
東京都渋谷区神宮前6-19-21
坪数:73.78 坪
坪単価:23,000 円(坪)