いろいろ聞いてみる

曙町の賃貸オフィス

曙町新井ビルディング(物件No:01186886)

曙町新井ビルディングは、神奈川県横浜市中区曙町にある地下1階、地上13階建ての賃貸事務所です。最寄駅はJR根岸線の関内駅から徒歩8分、横浜市ブルーラインの伊勢佐木長者町駅から徒歩4分です。1994年9月竣工の鉄骨造です。設備としては、エレベーターが3基あり、駐車場もあります。セキュリティは機械警備です。トイレは男女別です。空調は個別空調です。床仕様はタイルカーペットです。天高は2500mmです。耐震設計となっている、コンビニや飲食店などの周辺施設が充実した神奈川県横浜市中区曙町の賃貸オフィスです。

  • 曙町新井ビルディング
  • 曙町新井ビルディング
  • 曙町新井ビルディング
  • 曙町新井ビルディング
面積 賃料 共益費 敷金 入居日 お問合せ お気に入り
10F

(1区画)

49.4 坪

163.31 ㎡

※現在空室情報はございません

※現在空室情報は
ございません

最新情報を
確認する
  • 物件情報

    住所
    神奈川県横浜市中区曙町2-19-1
    最寄り駅
    JR根岸線 関内駅 徒歩8分
    横浜市ブルーライン 伊勢佐木長者町駅 徒歩4分
    竣工
    1994年
    耐震
    新耐震基準
    規模・構造
    B1F - 13F  鉄骨造
  • 設備情報

    トイレ
    男女別
    タイルカーペット
    空調
    個別空調
    セキュリティ
    駐車場
    会議室
    -
    エレベーター
    3基
    天井高
    2500mm
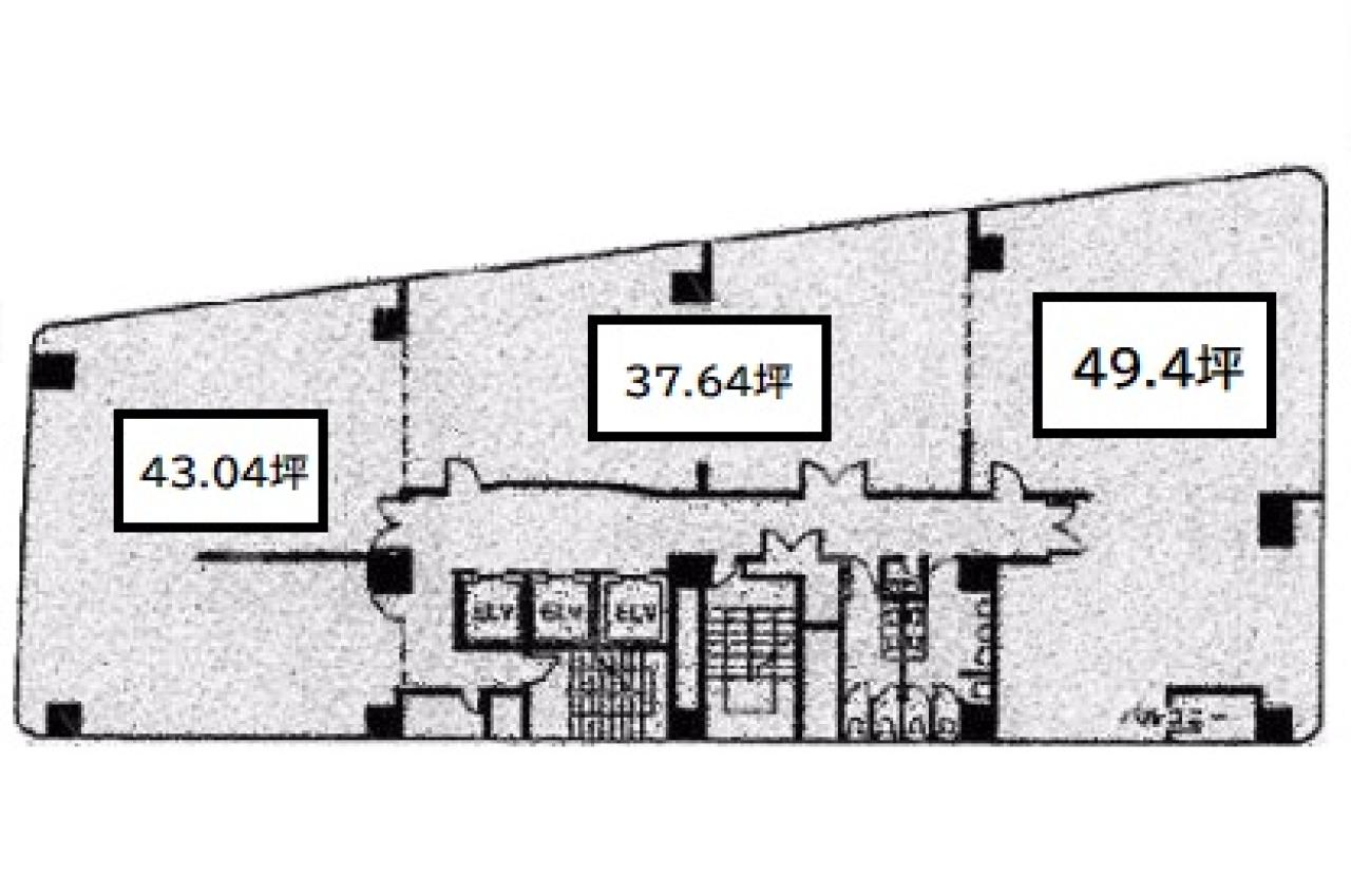
  • 間取り図

    間取り図

  • 近隣相場情報

    曙町2丁目(40~50坪)の相場

    調査中

周辺地図

曙町新井ビルディングは、神奈川県横浜市中区曙町にある地下1階、地上13階建ての賃貸事務所です。最寄駅はJR根岸線の関内駅から徒歩8分、横浜市ブルーラインの伊勢佐木長者町駅から徒歩4分です。1994年9月竣工の鉄骨造です。設備としては、エレベーターが3基あり、駐車場もあります。セキュリティは機械警備です。トイレは男女別です。空調は個別空調です。床仕様はタイルカーペットです。天高は2500mmです。耐震設計となっている、コンビニや飲食店などの周辺施設が充実した神奈川県横浜市中区曙町の賃貸オフィスです。

全フロア情報

更新日:2024年10月9日

面積 賃料 共益費 敷金 入居日 お問合せ お気に入り
2F

131.25 坪

433.88 ㎡

※現在空室情報はございません

※現在空室情報は
ございません

最新情報を
確認する
3F

130.87 坪

432.63 ㎡

※現在空室情報はございません

※現在空室情報は
ございません

最新情報を
確認する
4F

130.87 坪

432.63 ㎡

※現在空室情報はございません

※現在空室情報は
ございません

最新情報を
確認する
5F

(501区画)

49.33 坪

163.07 ㎡

※現在空室情報はございません

※現在空室情報は
ございません

最新情報を
確認する
5F

(502区画)

20.98 坪

69.36 ㎡

※現在空室情報はございません

※現在空室情報は
ございません

最新情報を
確認する
6F

130.87 坪

432.63 ㎡

※現在空室情報はございません

※現在空室情報は
ございません

最新情報を
確認する
7F

130.87 坪

432.63 ㎡

※現在空室情報はございません

※現在空室情報は
ございません

最新情報を
確認する
8F

130.87 坪

432.63 ㎡

※現在空室情報はございません

※現在空室情報は
ございません

最新情報を
確認する
9F

130.87 坪

432.63 ㎡

※現在空室情報はございません

※現在空室情報は
ございません

最新情報を
確認する
10F

130.13 坪

430.18 ㎡

※現在空室情報はございません

※現在空室情報は
ございません

最新情報を
確認する
10F

(1区画)

49.4 坪

163.31 ㎡

※現在空室情報はございません

※現在空室情報は
ございません

最新情報を
確認する
11F

37.69 坪

124.59 ㎡

※現在空室情報はございません

※現在空室情報は
ございません

最新情報を
確認する
11F

(1区画)

29.59 坪

97.82 ㎡

※現在空室情報はございません

※現在空室情報は
ございません

最新情報を
確認する
12F

(1201A区画)

29.59 坪

97.82 ㎡

※現在空室情報はございません

※現在空室情報は
ございません

最新情報を
確認する
12F

(1202区画)

37.69 坪

124.59 ㎡

※現在空室情報はございません

※現在空室情報は
ございません

最新情報を
確認する
13F

(1303区画)

41.86 坪

138.38 ㎡

※現在空室情報はございません

※現在空室情報は
ございません

最新情報を
確認する

お問い合わせ

必須
必須
必須
必須
必須

お問い合わせ

物件に関してのお問い合わせ

「失敗しないオフィス移転サポート」物件探しから移転までスムーズで担当者様がとにかく楽になるサービスです。

050-7587-0049平日 9:00~18:00

メールでお問い合わせ

フリーワード検索