虎ノ門3丁目アネックス(物件No:01185186)
虎ノ門3丁目アネックスは、港区虎ノ門にある地下1階、地上9階建ての賃貸事務所です。最寄駅は東京メトロ日比谷線の虎ノ門ヒルズ駅から徒歩5分、東京メトロ南北線の六本木一丁目駅から徒歩11分、東京メトロ銀座線の虎ノ門駅から徒歩8分、東京メトロ日比谷線の神谷町駅から徒歩2分です。1990年2月竣工の基準階面積が34.16坪の鉄骨鉄筋コンクリート造です。設備としては、エレベーターが1基あります。セキュリティは機械警備です。トイレは室内男女別です。空調は個別空調です。天高は2500mmです。耐震設計となっている、複数駅利用可能なアクセスの良い港区虎ノ門の賃貸オフィスです。
-
物件情報
-
設備情報
- トイレ
- 室内男女別
- 床
- -
- 空調
- 個別空調
- セキュリティ
- 有
- 駐車場
- 無
- 会議室
- -
- エレベーター
- 1基
- 天井高
- 2500mm
-
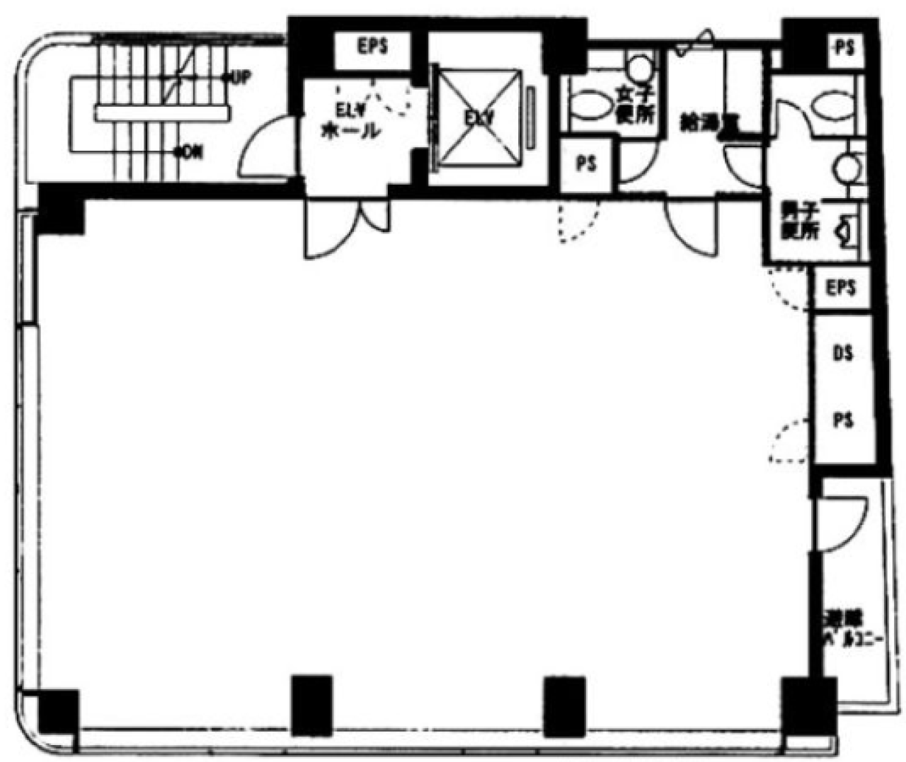
間取り図
-
近隣相場情報
虎ノ門3丁目(30~40坪)の相場
18166 円 (坪)
※ビルサク調べ
周辺施設情報
| コンビニ |
ファミリーマート/神谷町MTビル店/240m(徒歩3分) セブンイレブン/神谷町駅北/200m(徒歩3分) |
|---|---|
| 郵便局/銀行 |
郵便局/ATM ファミリーマート神谷町MTビル店内出張所/[ATM]平日0:05~23:55、土曜0:05~23:55、日曜0:05~23:55/230m(徒歩3分) 郵便局/港虎ノ門三/平日 9:00~17:00 土曜日 お取り扱いしません 日曜日・休日 お取り扱いしません [ATM]平日 9:00-19:00 土曜 9:00-12:30 日曜・祝日 -/150m(徒歩2分) |
| 飲食店 |
キッチン・ダダ/10時30分~15時00分、17時00分~20時00分/88m(徒歩1分) Bistro Chikara/11時30分~14時00分、17時30分~23時00分/150m(徒歩2分) |
| カフェ |
スターバックス/慈恵大学病院店/[営業時間]月~土:7:00~19:00 [休業日]日・祝/550m(徒歩7分) プロント/IL BAR 神谷町店/[営業時間]平日:カフェ 7:30~17:30 バー 17:30~23:00 土曜:カフェ 9:00~18:00 [休業日]日祝 [備考]63席/分煙/110m(徒歩1分) |
| コインパーキング |
タイムズ駐車場/虎ノ門 タワーズ [料金] [全日]08:00-22:00 60分 600円 [全日]22:00-08:00 30分 100円 [最大料金] [全日]当日1日最大料金3000円(24時迄) [台数]44 PEN/ステュディオ虎ノ門来客専用駐車場 [料金] 全日8:00~22:00 30分 400円 全日22:00~8:00 60分 200円 [台数]3台 |
周辺地図
虎ノ門3丁目アネックスは、港区虎ノ門にある地下1階、地上9階建ての賃貸事務所です。最寄駅は東京メトロ日比谷線の虎ノ門ヒルズ駅から徒歩5分、東京メトロ南北線の六本木一丁目駅から徒歩11分、東京メトロ銀座線の虎ノ門駅から徒歩8分、東京メトロ日比谷線の神谷町駅から徒歩2分です。1990年2月竣工の基準階面積が34.16坪の鉄骨鉄筋コンクリート造です。設備としては、エレベーターが1基あります。セキュリティは機械警備です。トイレは室内男女別です。空調は個別空調です。天高は2500mmです。耐震設計となっている、複数駅利用可能なアクセスの良い港区虎ノ門の賃貸オフィスです。
全フロア情報
更新日:2023年3月23日
| 階 | 面積 | 賃料 | 共益費 | 敷金 | 入居日 | お問合せ | お気に入り | |
|---|---|---|---|---|---|---|---|---|
| 3F |
34.16 坪 112.93 ㎡ |
※現在空室情報はございません |
※現在空室情報は 確認する |
|||||
| 5F |
34.16 坪 112.93 ㎡ |
※現在空室情報はございません |
※現在空室情報は 確認する |
|||||
| 7F |
34.16 坪 112.93 ㎡ |
※現在空室情報はございません |
※現在空室情報は 確認する |
|||||
お問い合わせ
似た条件の物件はこちら
-
代市ビル
東京都港区新橋5-8-3
坪数:38.61 坪
坪単価:15,000 円(坪)
-
麻布台ヒルズ ガーデンプラザB
東京都港区虎ノ門5-9-1
坪数:27.2 坪
坪単価:50,000 円(坪)
-
丸万1号館
東京都港区西新橋1-11-1
坪数:24.44 坪
坪単価:15,000 円(坪)
-
新橋安達ビル
東京都港区新橋5-28-7
坪数:29.34 坪
坪単価:14,500 円(坪)
-
石井ビル
東京都港区新橋3-1-10
坪数:33.46 坪
坪単価:16,000 円(坪)
-
近鉄銀座中央通りビルⅢ
東京都港区新橋1-7-10
坪数:35.1 坪
坪単価:26,001 円(坪)
-
アヴァンセ虎ノ門ビル
東京都港区西新橋2-13-15
坪数:33.22 坪
坪単価:34,618 円(坪)
-
ル・グラシエルBLDG.5
東京都港区新橋5-20-1
坪数:27 坪
坪単価:10,500 円(坪)
-
新橋五光ビル
東京都港区新橋5-27-3
坪数:30.86 坪
坪単価:13,000 円(坪)
-
Revina新橋
東京都港区新橋3-2-2
坪数:28.71 坪
坪単価:16,000 円(坪)