AUBE新川ビル(物件No:01181132)
AUBE新川ビルは、中央区新川にある貸事務所物件です。最寄り駅は東京メトロ東西線茅場町駅、東京メトロ日比谷線、JR八丁堀駅、都営浅草線宝町駅となっています。1974年竣工で、基準階が35坪の賃貸オフィスビルです。床はPタイルで、天井の高さは2400mm。トイレは室外男女別で、空調は個別空調です。エレベーターは1基あります。複数路線利用可能で交通アクセスの良い、中央区新川の貸事務所です。
| 階 | 面積 | 賃料 | 共益費 | 敷金 | 入居日 | お問合せ | お気に入り | |
|---|---|---|---|---|---|---|---|---|
|
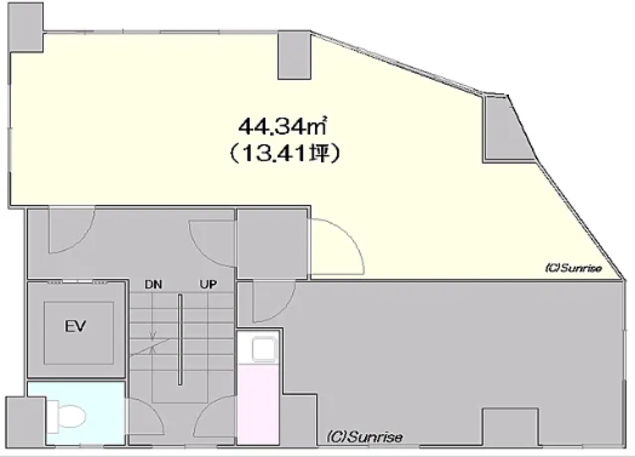
6F
(601区画) |
13.41 坪 44.33 ㎡ |
※現在空室情報はございません |
※現在空室情報は 確認する |
|||||
| 階 | 面積 | 賃料 | 共益費 | 敷金 | 入居日 | お問合せ | お気に入り | |
|---|---|---|---|---|---|---|---|---|
|
6F
(601区画) |
13.41 坪 44.33 ㎡ |
※現在空室情報はございません |
※現在空室情報は 確認する |
|||||
-
物件情報
-
設備情報
- トイレ
- 室外男女別
- 床
- Pタイル
- 空調
- 個別空調
- セキュリティ
- -
- 駐車場
- 無
- 会議室
- -
- エレベーター
- 1基
- 天井高
- 2400mm
-
間取り図
-
近隣相場情報
新川2丁目(20坪以下)の相場
16099 円 (坪)
※ビルサク調べ
周辺施設情報
| コンビニ |
セブンイレブン/中央区新川2丁目/63m(徒歩1分) ローソン/ナチュラル 新川二丁目/80m(徒歩1分) |
|---|---|
| 郵便局/銀行 |
ローソン銀行/NL 新川二丁目共同出張所/[営業時間]24時間/80m(徒歩1分) セブン銀行/中央区新川2丁目店/[営業時間]24時間営業/63m(徒歩1分) |
| 飲食店 |
ゆで太郎 新川2丁目店/7時00分~15時00分/110m(徒歩1分) 翠江堂本店/9時00分~19時00分/49m(徒歩1分) |
| カフェ |
タリーズ/東京ダイヤビルディング店/[営業時間]平日:7:00~20:00 土 :休業日 日祝:休業日/220m(徒歩3分) プロント/新川店/[営業時間]平日:カフェ 7:30~17:30/350m(徒歩4分) |
| コインパーキング |
三井のリパーク/新川2丁目第7 [料金] [料金]全日 08:00~20:00 12分/200円 全日 20:00~08:00 60分/100円 [最大料金] 【全日】20:00~8:00以内 最大料金800円 ※最大料金は繰り返し適用となります。 [台数]3 三井のリパーク/新川2丁目第11 [料金] [料金] 【全日】最大料金入庫後6時間以内2200円 [最大料金] [料金]全日 08:00~22:00 25分/300円 全日 22:00~08:00 60分/100円 [台数]2 |
周辺地図
AUBE新川ビルは、中央区新川にある貸事務所物件です。最寄り駅は東京メトロ東西線茅場町駅、東京メトロ日比谷線、JR八丁堀駅、都営浅草線宝町駅となっています。1974年竣工で、基準階が35坪の賃貸オフィスビルです。床はPタイルで、天井の高さは2400mm。トイレは室外男女別で、空調は個別空調です。エレベーターは1基あります。複数路線利用可能で交通アクセスの良い、中央区新川の貸事務所です。
全フロア情報
更新日:2025年12月4日
| 階 | 面積 | 賃料 | 共益費 | 敷金 | 入居日 | お問合せ | お気に入り | |
|---|---|---|---|---|---|---|---|---|
|
2F
(201区画) |
6.71 坪 22.18 ㎡ |
※現在空室情報はございません |
※現在空室情報は 確認する |
|||||
| 3F |
20.82 坪 68.83 ㎡ |
291,480 円 14,000 円(坪) |
54,132 円 2,600 円(坪) |
1,748,880 円 6 ヶ月 |
相談 |
|
|
|
|
3F
(301区画) |
6.63 坪 21.92 ㎡ |
※現在空室情報はございません |
※現在空室情報は 確認する |
|||||
|
3F
(302区画) |
6.7 坪 22.15 ㎡ |
※現在空室情報はございません |
※現在空室情報は 確認する |
|||||
|
4F
(2+3区画) |
14.33 坪 47.37 ㎡ |
※現在空室情報はございません |
※現在空室情報は 確認する |
|||||
|
4F
(400区画) |
6.7 坪 22.15 ㎡ |
※現在空室情報はございません |
※現在空室情報は 確認する |
|||||
|
4F
(402区画) |
14.33 坪 47.37 ㎡ |
193,459 円 13,500 円(坪) |
37,258 円 2,600 円(坪) |
1,160,754 円 6 ヶ月 |
即日 |
|
|
|
|
4F
(403区画) |
7.29 坪 24.1 ㎡ |
※現在空室情報はございません |
※現在空室情報は 確認する |
|||||
|
5F
(503区画) |
7.41 坪 24.5 ㎡ |
103,740 円 14,000 円(坪) |
22,230 円 3,000 円(坪) |
622,440 円 6 ヶ月 |
即日 |
|
|
|
|
6F
(1+2区画) |
13.41 坪 44.33 ㎡ |
181,035 円 13,500 円(坪) |
34,866 円 2,600 円(坪) |
1,086,210 円 6 ヶ月 |
即日 |
|
|
|
|
6F
(601区画) |
13.41 坪 44.33 ㎡ |
※現在空室情報はございません |
※現在空室情報は 確認する |
|||||
|
7F
(3区画) |
7.41 坪 24.5 ㎡ |
※現在空室情報はございません |
※現在空室情報は 確認する |
|||||
| 8F |
20.82 坪 68.83 ㎡ |
291,480 円 14,000 円(坪) |
54,132 円 2,600 円(坪) |
1,748,880 円 6 ヶ月 |
即日 |
|
|
|
|
9F
(902区画) |
6.76 坪 22.35 ㎡ |
※現在空室情報はございません |
※現在空室情報は 確認する |
|||||
|
9F
(903区画) |
7.41 坪 24.5 ㎡ |
103,740 円 14,000 円(坪) |
19,265 円 2,600 円(坪) |
622,440 円 6 ヶ月 |
即日 |
|
|
|
お問い合わせ
似た条件の物件はこちら
-
大湯ビル
東京都中央区日本橋茅場町2-6-8
坪数:10 坪
坪単価:18,000 円(坪)
-
TKヤマダビル
東京都中央区八丁堀4-10-6
坪数:17.99 坪
坪単価:10,006 円(坪)
-
第1井上ビル
東京都中央区日本橋茅場町2-14-1
坪数:15.5 坪
坪単価:14,387 円(坪)
-
ニューリバータワー
東京都中央区新川1-6-11
坪数:16.2 坪
坪単価:22,000 円(坪)
-
BM兜町ビル
東京都中央区日本橋兜町11-7
坪数:12.8 坪
坪単価:11,000 円(坪)
-
高田ビル
東京都中央区日本橋茅場町3-3-2
坪数:11 坪
坪単価:12,231 円(坪)
-
野沢天祐堂
東京都中央区八丁堀2-22-11
坪数:15.21 坪
坪単価:9,999 円(坪)
-
桂昇茅場町ビル
東京都中央区日本橋茅場町1-6-2
坪数:16.9 坪
坪単価:11,834 円(坪)
-
ワナミビル
東京都中央区日本橋茅場町1-4-5
坪数:14.98 坪
坪単価:11,015 円(坪)