いろいろ聞いてみる

三田の賃貸オフィス

三田国際ビル(物件No:01088145)

三田国際ビルは、港区三田にある貸事務所物件です。最寄り駅は、都営大江戸線の赤羽橋駅、都営三田線、都営浅草線の三田駅、JR線の田町駅、都営三田線の芝公園駅です。1975年竣工で、基準階が698.53坪の賃貸オフィスビルです。床はOAフロアとなっております。空調はセントラル空調で、トイレは男女別です。有人警備で、エレベーターは20基あります。駐車場が利用可能な、アクセスの良い港区三田の貸事務所です。

面積 賃料 共益費 敷金 入居日 お問合せ お気に入り
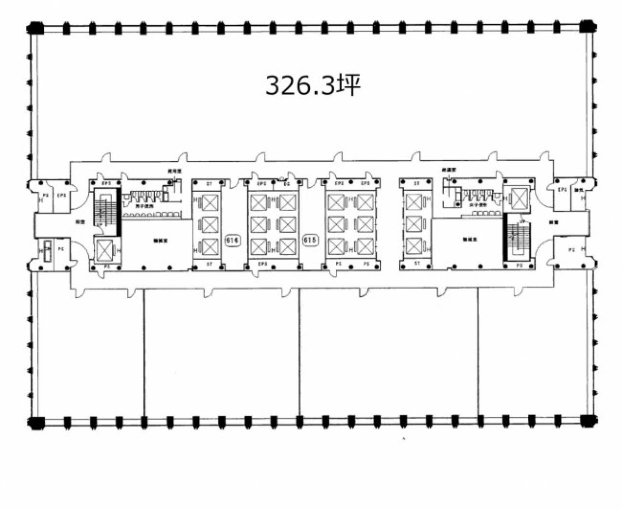
14F

(2区画)

326.38 坪

1078.94 ㎡

相談

相談

相談

即日 お問い合わせ お気に入り
  • 三田国際ビル
  • 三田国際ビル
  • 三田国際ビル
  • 三田国際ビル
面積 賃料 共益費 敷金 入居日 お問合せ お気に入り
14F

(2区画)

326.38 坪

1078.94 ㎡

相談

相談

相談

即日 お問い合わせ お気に入り

周辺施設情報

コンビニ

ファミリーマート/三田桜田通り店/94m(徒歩1分)

セブンイレブン/港区芝3丁目/96m(徒歩2分)

郵便局/銀行

三井住友銀行/ATM 三田国際ビル出張所/[営業時間]平日 7:00~24:00 土曜 7:00~24:00 日曜 7:00~21:00/25m(徒歩1分)

郵便局/三田国際ビル内/平日 9:00-17:00 土曜 - 日曜・祝日 - [ATM]平日 8:00-19:00 土曜 9:00-12:30 日曜・祝日 -/

飲食店

屋台デリ 三田国際ビルディング店/11時00分~14時30分/140m(徒歩2分)

梅寿司/11時30分~22時00分/94m(徒歩2分)

カフェ

タリーズ/慶大東門前店/[営業時間]平日:7:00~20:30 土 :8:00~19:00 日祝:8:00~19:00 [備考]Tully's Wi-Fi、喫煙ルーム/290m(徒歩4分)

萃茶 赤羽橋店/11:00~23:00/150m(徒歩2分)

コインパーキング

タイムズ駐車場/芝第3

[料金]

[月~金]通常料金 / 0:00~0:00 20分 400円

[土・日・祝]通常料金 / 0:00~0:00 60分 200円

[最大料金]

[月~金]8:00~20:00 最大料金3000円 20:00~8:00 最大料金700円

[土・日・祝]20:00~8:00 最大料金700円

[台数]4

東洋CARMAX/芝3丁目第3

[料金]

(全日) 08:00-24:00 ¥300 30分

(全日) 00:00-08:00 ¥100 60分

[最大料金]

(月-土) 入庫後12時間以内 ¥2600

(日祝) 入庫後12時間以内 ¥1400

[台数]2

周辺地図

三田国際ビルは、港区三田にある貸事務所物件です。最寄り駅は、都営大江戸線の赤羽橋駅、都営三田線、都営浅草線の三田駅、JR線の田町駅、都営三田線の芝公園駅です。1975年竣工で、基準階が698.53坪の賃貸オフィスビルです。床はOAフロアとなっております。空調はセントラル空調で、トイレは男女別です。有人警備で、エレベーターは20基あります。駐車場が利用可能な、アクセスの良い港区三田の貸事務所です。

全フロア情報

更新日:2026年3月31日

面積 賃料 共益費 敷金 入居日 お問合せ お気に入り
B2F

(1区画)

41.54 坪

137.32 ㎡

相談

相談

相談

即日 お問い合わせ お気に入り
B1F

(1区画)

41.25 坪

136.36 ㎡

※現在空室情報はございません

※現在空室情報は
ございません

最新情報を
確認する
B1F

(2区画)

31.99 坪

105.75 ㎡

※現在空室情報はございません

※現在空室情報は
ございません

最新情報を
確認する
1F

(1区画)

134.72 坪

445.36 ㎡

相談

無し

12ヶ月

2026/5 お問い合わせ お気に入り
1F

(2区画)

88.04 坪

291.04 ㎡

※現在空室情報はございません

※現在空室情報は
ございません

最新情報を
確認する
1F

(3区画)

53.55 坪

177.02 ㎡

※現在空室情報はございません

※現在空室情報は
ございません

最新情報を
確認する
1F

(4区画)

201.76 坪

666.97 ㎡

※現在空室情報はございません

※現在空室情報は
ございません

最新情報を
確認する
1F

(5区画)

120.2 坪

397.35 ㎡

※現在空室情報はございません

※現在空室情報は
ございません

最新情報を
確認する
1F

(6区画)

110.45 坪

365.12 ㎡

相談

相談

相談

2026/4 お問い合わせ お気に入り
2F

(1区画)

41.32 坪

136.59 ㎡

※現在空室情報はございません

※現在空室情報は
ございません

最新情報を
確認する
2F

(2区画)

36.19 坪

119.64 ㎡

※現在空室情報はございません

※現在空室情報は
ございません

最新情報を
確認する
3F

(1区画)

151.53 坪

500.92 ㎡

※現在空室情報はございません

※現在空室情報は
ございません

最新情報を
確認する
3F

(2区画)

69.29 坪

229.06 ㎡

※現在空室情報はございません

※現在空室情報は
ございません

最新情報を
確認する
3F

(3区画)

58.88 坪

194.64 ㎡

※現在空室情報はございません

※現在空室情報は
ございません

最新情報を
確認する
4F

(1区画)

326.38 坪

1078.94 ㎡

相談

相談

相談

即日 お問い合わせ お気に入り
5F

(1区画)

58.88 坪

194.64 ㎡

※現在空室情報はございません

※現在空室情報は
ございません

最新情報を
確認する
5F

(2区画)

10.42 坪

34.45 ㎡

※現在空室情報はございません

※現在空室情報は
ございません

最新情報を
確認する
5F

(3区画)

10.42 坪

34.45 ㎡

※現在空室情報はございません

※現在空室情報は
ございません

最新情報を
確認する
5F

(4区画)

326.38 坪

1078.94 ㎡

※現在空室情報はございません

※現在空室情報は
ございません

最新情報を
確認する
6F

(1区画)

102.55 坪

339.01 ㎡

※現在空室情報はございません

※現在空室情報は
ございません

最新情報を
確認する
6F

(2区画)

10.42 坪

34.45 ㎡

※現在空室情報はございません

※現在空室情報は
ございません

最新情報を
確認する
7F

(1区画)

132.48 坪

437.95 ㎡

※現在空室情報はございません

※現在空室情報は
ございません

最新情報を
確認する
9F

652.76 坪

2157.88 ㎡

※現在空室情報はございません

※現在空室情報は
ございません

最新情報を
確認する
9F

(1区画)

326.38 坪

1078.94 ㎡

相談

相談

相談

即日 お問い合わせ お気に入り
10F

(1区画)

29.44 坪

97.32 ㎡

※現在空室情報はございません

※現在空室情報は
ございません

最新情報を
確認する
10F

(2区画)

44.16 坪

145.98 ㎡

※現在空室情報はございません

※現在空室情報は
ございません

最新情報を
確認する
10F

(3区画)

258.87 坪

855.77 ㎡

※現在空室情報はございません

※現在空室情報は
ございません

最新情報を
確認する
10F

(4区画)

67.51 坪

223.17 ㎡

※現在空室情報はございません

※現在空室情報は
ございません

最新情報を
確認する
10F

(5区画)

88.32 坪

291.97 ㎡

相談

相談

相談

即日 お問い合わせ お気に入り
11F

(2区画)

259 坪

856.2 ㎡

※現在空室情報はございません

※現在空室情報は
ございません

最新情報を
確認する
12F

(1区画)

38.07 坪

125.85 ㎡

※現在空室情報はございません

※現在空室情報は
ございません

最新情報を
確認する
12F

(2区画)

229.43 坪

758.45 ㎡

相談

相談

相談

即日 お問い合わせ お気に入り
13F

(1区画)

96.95 坪

320.5 ㎡

※現在空室情報はございません

※現在空室情報は
ございません

最新情報を
確認する
13F

(2区画)

44.16 坪

145.98 ㎡

※現在空室情報はございません

※現在空室情報は
ございません

最新情報を
確認する
13F

(3区画)

229.43 坪

758.45 ㎡

※現在空室情報はございません

※現在空室情報は
ございません

最新情報を
確認する
14F

(1区画)

229.43 坪

758.45 ㎡

※現在空室情報はございません

※現在空室情報は
ございません

最新情報を
確認する
14F

(2区画)

326.38 坪

1078.94 ㎡

相談

相談

相談

即日 お問い合わせ お気に入り
14F

(3区画)

96.95 坪

320.5 ㎡

※現在空室情報はございません

※現在空室情報は
ございません

最新情報を
確認する
16F

(1区画)

52.79 坪

174.51 ㎡

※現在空室情報はございません

※現在空室情報は
ございません

最新情報を
確認する
16F

(2区画)

229.43 坪

758.45 ㎡

※現在空室情報はございません

※現在空室情報は
ございません

最新情報を
確認する
16F

(3区画)

96.95 坪

320.5 ㎡

※現在空室情報はございません

※現在空室情報は
ございません

最新情報を
確認する
16F

(4区画)

44.16 坪

145.98 ㎡

※現在空室情報はございません

※現在空室情報は
ございません

最新情報を
確認する
17F

(1区画)

96.95 坪

320.5 ㎡

※現在空室情報はございません

※現在空室情報は
ございません

最新情報を
確認する
17F

(2区画)

132.48 坪

437.95 ㎡

※現在空室情報はございません

※現在空室情報は
ございません

最新情報を
確認する
17F

(3区画)

326.38 坪

1078.94 ㎡

相談

相談

相談

即日 お問い合わせ お気に入り
18F

(1区画)

22.88 坪

75.64 ㎡

※現在空室情報はございません

※現在空室情報は
ございません

最新情報を
確認する
18F

(2区画)

96.95 坪

320.5 ㎡

※現在空室情報はございません

※現在空室情報は
ございません

最新情報を
確認する
18F

(3区画)

67.51 坪

223.17 ㎡

※現在空室情報はございません

※現在空室情報は
ございません

最新情報を
確認する
18F

(4区画)

29.44 坪

97.32 ㎡

※現在空室情報はございません

※現在空室情報は
ございません

最新情報を
確認する
19F

(1区画)

326.38 坪

1078.94 ㎡

相談

相談

相談

即日 お問い合わせ お気に入り
19F

(2区画)

326.38 坪

1078.94 ㎡

※現在空室情報はございません

※現在空室情報は
ございません

最新情報を
確認する
19F

(3区画)

22.88 坪

75.64 ㎡

※現在空室情報はございません

※現在空室情報は
ございません

最新情報を
確認する
20F

(1区画)

681.82 坪

2253.95 ㎡

※現在空室情報はございません

※現在空室情報は
ございません

最新情報を
確認する
22F

675.64 坪

2233.52 ㎡

※現在空室情報はございません

※現在空室情報は
ございません

最新情報を
確認する
22F

(1区画)

52.79 坪

174.51 ㎡

※現在空室情報はございません

※現在空室情報は
ございません

最新情報を
確認する
22F

(2区画)

117.76 坪

389.29 ㎡

※現在空室情報はございません

※現在空室情報は
ございません

最新情報を
確認する
22F

(3区画)

44.16 坪

145.98 ㎡

※現在空室情報はございません

※現在空室情報は
ございません

最新情報を
確認する
23F

(1区画)

22.88 坪

75.64 ㎡

※現在空室情報はございません

※現在空室情報は
ございません

最新情報を
確認する
24F

(1区画)

29.44 坪

97.32 ㎡

※現在空室情報はございません

※現在空室情報は
ございません

最新情報を
確認する
24F

(2区画)

252.31 坪

834.08 ㎡

※現在空室情報はございません

※現在空室情報は
ございません

最新情報を
確認する
24F

(3区画)

44.16 坪

145.98 ㎡

※現在空室情報はございません

※現在空室情報は
ございません

最新情報を
確認する
24F

(4区画)

11.44 坪

37.82 ㎡

※現在空室情報はございません

※現在空室情報は
ございません

最新情報を
確認する
26F

(1区画)

458.86 坪

1516.89 ㎡

※現在空室情報はございません

※現在空室情報は
ございません

最新情報を
確認する
26F

(2区画)

22.88 坪

75.64 ㎡

※現在空室情報はございません

※現在空室情報は
ございません

最新情報を
確認する
26F

(3区画)

96.95 坪

320.5 ㎡

※現在空室情報はございません

※現在空室情報は
ございません

最新情報を
確認する
別館1F

(1区画)

71.16 坪

235.24 ㎡

※現在空室情報はございません

※現在空室情報は
ございません

最新情報を
確認する

お問い合わせ

必須
必須
必須
必須
必須

関連エリアから探す

駅から探す

お問い合わせ

物件に関してのお問い合わせ

「失敗しないオフィス移転サポート」物件探しから移転までスムーズで担当者様がとにかく楽になるサービスです。

050-7587-0049平日 9:00~18:00

メールでお問い合わせ

フリーワード検索