日光ビル(物件No:01084099)
日光ビルは千代田区神田小川町にある地上10階建ての賃貸事務所です。最寄駅は東京メトロ丸ノ内線の淡路町駅から徒歩1分、東京メトロ千代田線の新御茶ノ水駅から徒歩2分です。1990年5月竣工の基準階面積が34.94坪の鉄骨鉄筋コンクリート造です。設備としては、エレベーターが1基あります。セキュリティは機械警備です。トイレは男女別です。空調は個別空調です。天高は2400mmです。耐震設計となっている、最寄駅から近くて便利な千代田区神田小川町の賃貸オフィスです。
-
物件情報
-
設備情報
- トイレ
- 男女別
- 床
- -
- 空調
- 個別空調
- セキュリティ
- 有
- 駐車場
- -
- 会議室
- -
- エレベーター
- 1基
- 天井高
- 2400mm
-
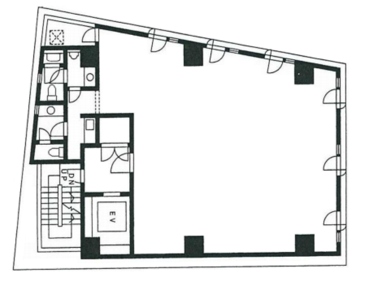
間取り図
-
近隣相場情報
神田小川町1丁目(30~40坪)の相場
19250 円 (坪)
※ビルサク調べ
周辺施設情報
| コンビニ |
ファミリーマート/薬ヒグチ淡路町店/160m(徒歩2分) セブンイレブン/神田須田町1丁目/170m(徒歩2分) |
|---|---|
| 郵便局/銀行 |
セブン銀行/神田須田町1丁目店/[営業時間]24時間営業 [備考]1 台/170m(徒歩2分) みずほ銀行/神田支店/[営業時間] [窓口]平日9:00~15:00 [ATM]平日 6:00~26:00 土曜日 8:00~22:00 日曜日 8:00~21:00 祝日・振替休日 8:00~21:00 備考 *月曜日の6:00~7:00はご利用いただけません [駐車場]日幸神田ビル駐車場/91m(徒歩1分) |
| 飲食店 |
川味坊/11時00分~15時00分、17時00分~23時45分/220m(徒歩2分) 淡路町 麦酒家 (むぎしゅや)/15時00分~23時00分/350m(徒歩4分) |
| カフェ |
ドトール/神田淡路町店/[営業時間]※営業時間を短縮しております。(~18:00)■通常営業時間 平日 7:00~21:00 土曜 7:30~19:00 日祝 8:00~19:00 [備考]総席数:38(禁煙席:30 喫煙席:8)/喫煙席(加熱)/140m(徒歩2分) エクセルシオール/カフェ 神田小川町店/[営業時間]※営業時間を短縮しております。(~20:00)■通常営業時間 平日 6:45~22:00 土曜 7:30~21:00 日祝 7:30~20:00 [備考]総席数:58(禁煙席:40 喫煙席:18)/喫煙席(加熱)/200m(徒歩2分) |
| コインパーキング |
三井のリパーク/神田小川町1丁目第3 [料金] 全日 08:00~22:00 15分/400円 全日 22:00~08:00 60分/100円 [台数]2 NPC24H/クイックパーキング神田錦町 [料金] 12分/100円(6時~22時) 120分/100円(22時~6時) [最大料金] 【普通車】24時間毎 2800円 【ハイルーフ車】24時間毎 3200円 [台数]99台 |
周辺地図
日光ビルは千代田区神田小川町にある地上10階建ての賃貸事務所です。最寄駅は東京メトロ丸ノ内線の淡路町駅から徒歩1分、東京メトロ千代田線の新御茶ノ水駅から徒歩2分です。1990年5月竣工の基準階面積が34.94坪の鉄骨鉄筋コンクリート造です。設備としては、エレベーターが1基あります。セキュリティは機械警備です。トイレは男女別です。空調は個別空調です。天高は2400mmです。耐震設計となっている、最寄駅から近くて便利な千代田区神田小川町の賃貸オフィスです。
全フロア情報
更新日:2024年10月9日
| 階 | 面積 | 賃料 | 共益費 | 敷金 | 入居日 | お問合せ | お気に入り | |
|---|---|---|---|---|---|---|---|---|
| 2F |
34.93 坪 115.47 ㎡ |
※現在空室情報はございません |
※現在空室情報は 確認する |
|||||
| 3F |
34.94 坪 115.50 ㎡ |
※現在空室情報はございません |
※現在空室情報は 確認する |
|||||
| 5F |
34.94 坪 115.50 ㎡ |
※現在空室情報はございません |
※現在空室情報は 確認する |
|||||
| 8F |
34.94 坪 115.5 ㎡ |
※現在空室情報はございません |
※現在空室情報は 確認する |
|||||
お問い合わせ
似た条件の物件はこちら
-
大手町ゲートビルディング
東京都千代田区内神田1-31-11
坪数:34.8 坪
坪単価:70,402 円(坪)
-
新八光ビル
東京都千代田区内神田3-22-9
坪数:38.3 坪
坪単価:20,000 円(坪)
-
神田中沢ビル
東京都千代田区外神田6-14-12
坪数:28.5 坪
坪単価:10,526 円(坪)
-
神田松楠ビル
東京都千代田区内神田2-7-10
坪数:37.07 坪
坪単価:15,000 円(坪)
-
KSKビル
東京都千代田区外神田5-1-15
坪数:39.4 坪
坪単価:16,000 円(坪)
-
エスポワールビル
東京都千代田区神田紺屋町38
坪数:36.67 坪
坪単価:13,000 円(坪)
-
ism神田
東京都千代田区神田東松下町48
坪数:31.72 坪
坪単価:16,000 円(坪)
-
神田荒木ビル
東京都千代田区神田須田町1-14-6
坪数:30.03 坪
坪単価:18,000 円(坪)
-
大栄堂ビル
東京都千代田区神田小川町3-6
坪数:30 坪
坪単価:20,000 円(坪)
-
藤川ビル
東京都千代田区神田佐久間町1-27
坪数:28 坪
坪単価:10,000 円(坪)
関連エリアから探す
- 内神田
- 神田淡路町
- 神田小川町
- 神田鍛冶町
- 神田須田町
- 神田駿河台
- 神田多町
- 神田司町
- 神田錦町
- 神田美土代町
- 岩本町
- 鍛冶町
- 神田岩本町
- 神田北乗物町
- 神田紺屋町
- 神田富山町
- 神田西福田町
- 神田東松下町
- 神田東紺屋町
- 神田美倉町
- 東神田
- 神田相生町
- 神田和泉町
- 神田佐久間町
- 神田佐久間河岸
- 神田練塀町
- 神田花岡町
- 神田松永町
- 外神田
- 神田平河町