いろいろ聞いてみる

高島の賃貸オフィス

ファーストプレイス横浜(物件No:00532403)

  • ファーストプレイス横浜
  • ファーストプレイス横浜
  • ファーストプレイス横浜
  • ファーストプレイス横浜
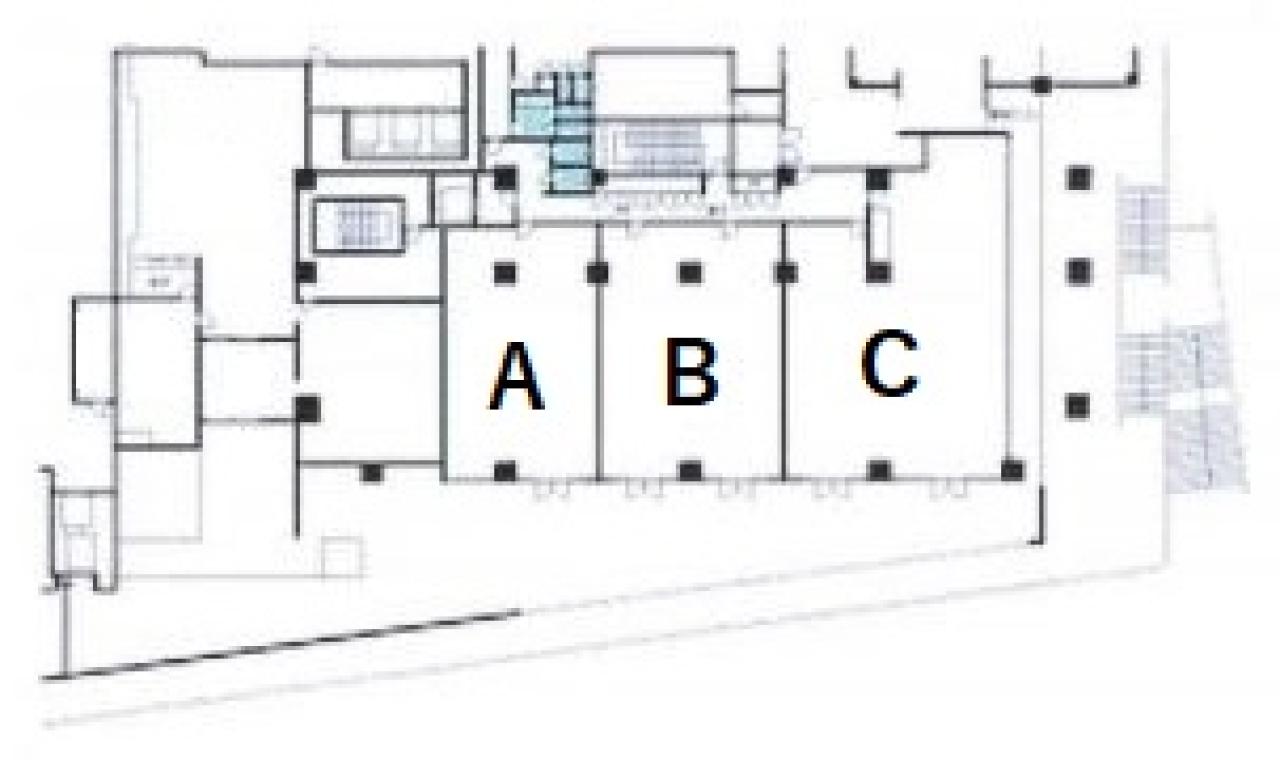
面積 賃料 共益費 敷金 入居日 お問合せ お気に入り
2F

(C区画)

60.67 坪

200.56 ㎡

※現在空室情報はございません

※現在空室情報は
ございません

最新情報を
確認する

周辺地図

全フロア情報

更新日:2024年10月9日

面積 賃料 共益費 敷金 入居日 お問合せ お気に入り
2F

(B区画)

36.87 坪

121.88 ㎡

※現在空室情報はございません

※現在空室情報は
ございません

最新情報を
確認する
2F

(C区画)

60.67 坪

200.56 ㎡

※現在空室情報はございません

※現在空室情報は
ございません

最新情報を
確認する

お問い合わせ

必須
必須
必須
必須
必須

お問い合わせ

物件に関してのお問い合わせ

「失敗しないオフィス移転サポート」物件探しから移転までスムーズで担当者様がとにかく楽になるサービスです。

050-7587-0049平日 9:00~18:00

メールでお問い合わせ

フリーワード検索