いろいろ聞いてみる

高島の賃貸オフィス

福島ビル(物件No:00275982)

面積 賃料 共益費 敷金 入居日 お問合せ お気に入り
7F

35.57 坪

117.6 ㎡

※現在空室情報はございません

※現在空室情報は
ございません

最新情報を
確認する
  • 物件情報

    住所
    神奈川県横浜市西区高島2-6-41
    最寄り駅
    みなとみらい線 新高島駅 徒歩3分
    横浜市ブルーライン 高島町駅 徒歩5分
    竣工
    1986年
    耐震
    新耐震基準
    規模・構造
    1F - 8F  鉄骨鉄筋コンクリート造
  • 設備情報

    トイレ
    男女別
    -
    空調
    -
    セキュリティ
    -
    駐車場
    -
    会議室
    -
    エレベーター
    1基
    天井高
    -
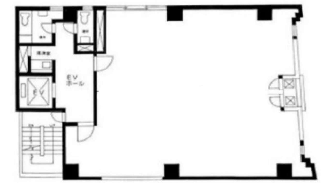
  • 間取り図

    間取り図

  • 近隣相場情報

    高島2丁目(30~40坪)の相場

    調査中

周辺地図

全フロア情報

更新日:2024年10月9日

面積 賃料 共益費 敷金 入居日 お問合せ お気に入り
3F

35.57 坪

117.6 ㎡

※現在空室情報はございません

※現在空室情報は
ございません

最新情報を
確認する
6F

35.57 坪

117.6 ㎡

※現在空室情報はございません

※現在空室情報は
ございません

最新情報を
確認する
7F

35.57 坪

117.6 ㎡

※現在空室情報はございません

※現在空室情報は
ございません

最新情報を
確認する

お問い合わせ

必須
必須
必須
必須
必須

お問い合わせ

物件に関してのお問い合わせ

「失敗しないオフィス移転サポート」物件探しから移転までスムーズで担当者様がとにかく楽になるサービスです。

050-7587-0049平日 9:00~18:00

メールでお問い合わせ

フリーワード検索